フィンランドサウナのある暮らしをあなたへ
フィンランド生まれのログハウス・メーカー、ホンカ・ジャパンは新しいモデル「ヒュッティ(フィンランド語でコンパートメント)」の日本バージョンを発売しました。フィンランドならではの湖畔の風景が似合うモデル「ヒュッティ」のオリジナルは、本国で今年発表され、コンパクトなサウナキャビンとして人気です。
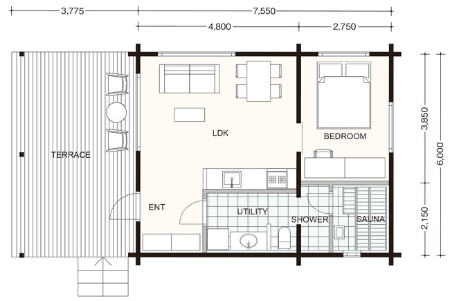
サウナ室に、キッチンも付いたLDKと寝室一部屋からなる約45平方メートル の「ヒュッティ」は、サウナのある暮らしを楽しめます。大きな窓と広いテラスが特徴のヒュッティでは、周囲の自然ともなじみやすく、テラスでは外気浴やバーベキューも。
ホンカ・ジャパンでは、東京ショールーム・オープンを記念したキャンペーンを実施中です。新モデル「ヒュッティ」は、サウナ付きログホームを契約の方へのサウナキット・プレゼントの対象モデルです。この機会に「サウナのある暮らし」を実現しませんか。
https://www.honka.co.jp/hytti/

自然と一体となるコンパートメント
どこまでも広がる青い空に、平野に広がる緑の森、そして目の前に広がるのは湖。フィンランドならではの森と湖の風景にぴったりなのが、ホンカの「ヒュッティ」です。「フィンランドサウナのある暮らし」ができるミニマムな「コンパートメント」のようなログホーム「ヒュッティ」で、フィンランドらしい「サウナのある暮らし」を満喫してください。


フィンランドサウナの特徴は「ロウリュ」。サウナ・ストーブの上に乗った石にお湯をかけるとサウナ室内に熱い蒸気が広がります。サウナで十分に体を暖めたら、広いテラスで外気浴。テラスに、リクライニングチェアとテーブルを用意して、サウナとテラスを往復ながらじっくりとサウナを楽しむのも贅沢な時間となるでしょう。テラスが広いので、簡易的なビニールプールや本格的なホットタブを設置して水風呂や露天風呂を楽しんでみるのも。
[動画1: https://www.youtube.com/watch?v=DyD56-NN4jE ]
こちらのサウナキャビンは、ホンカ東京ショールーム・オープン・キャンペーンでのサウナキット・プレゼントの対象モデルです。
https://www.honka.co.jp/campaign_showroom/
「サウナのある暮らし」はホンカから。ホンカのサウナラインナップ
https://www.honka.co.jp/lineup/sauna/
[動画2: https://www.youtube.com/watch?v=20MCcNFkcRg ]
株式会社ホンカ・ジャパン
〒163-1408 東京都新宿区西新宿3-20-2
東京オペラシティタワー 8F
TEL : 03-5309-2369
https://www.honka.co.jp/