~築18年の木造住宅をハウススタジオにアップデート~
「外の世界や環境とのリズム 流れる空気や光 空間で得られる体験」を提案するMAAD株式会社(本社:東京都豊島区 代表取締役 村木 計)は、神奈川県鎌倉市七里ガ浜に「鎌倉Attention」を設計デザインいたしました。湘南の海を一望し、日常、非日常さまざまなシーンで活用できる撮影用ハウススタジオとして、利用を開始しています。

1階リビングダイニングキッチン(C)白井晴幸
「鎌倉Attention」 -海と空に溶け込む空間体験-
七里ヶ浜の砂浜から徒歩1分。一見無機質な白い箱のようにみえるこのスペースは、窓が海に向かって大きく開き、目の前に広がる青い海や空とのつながりを感じる空間です。
早朝の静かな時間帯は、空間に優しい青が広がり、夕暮れ時には、夕陽の柔らかな金色に包み込まれます。太陽が沈み明かりを灯せば、ふんわりと眠りを誘うような温かみのある空間となります。
スタジオとしての機能を兼ね備える為、全体に光が回る白色と、シチュエーションに合わせられる照明を計画しました。
鎌倉の初夏の象徴であるあじさいの小道のような青い部屋や、歴史ある鎌倉の神社仏閣を連想できる和室空間も備えています。多くの人が訪れる七里ヶ浜の場所で、豊かな時間や季節の移ろい、日本の伝統文化を感じながら過ごす時間を提案します。

建物外観。夜の空にそれぞれの部屋の光が浮かびあがります。(C)白井晴幸

1階ダイニング・キッチン。海を眺めながら、料理や食事を楽しめます。(C)白井晴幸

1階リビング。夜は数パターンの照明で空間を照らすことができます。(C)白井晴幸

2階ROOM1ゲストルームは、青い空間が海に溶け込むような体験を生み出します。(C)白井晴幸

2階MAIN BEDROOM 優しい色味の空間とすることで、海と空を感じゆったりできる寝室です。(C)白井晴幸

2階ROOM2 山に面した和室は、鎌倉の歴史を感じ、静かで穏やかな時間を過ごせる空間です。(C)白井晴幸

2階洗面・バスルーム 海を一望でき、海に浮かぶ船のような独立した置型バスタブが外との一体感を生み出します。(C)白井晴幸
▼物件概要
住所:神奈川県鎌倉市七里ガ浜2丁目
アクセス:江の島電鉄「鎌倉高校前駅」より徒歩3分

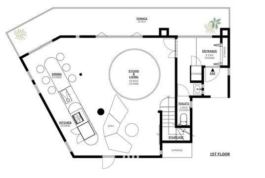
1階平面図 (C)MAAD株式会社

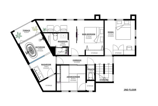
2階平面図 (C)MAAD株式会社

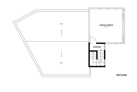
屋上平面図 (C)MAAD株式会社
「鎌倉Attention」のご予約やお問い合わせは、下記リンクよりご連絡ください
HP:https://www.attention-studio.com/
Instagram:https://www.instagram.com/attention.st/?igsh=MXVibHE3dHRxdmthMg%3D%3D▼物件詳細はこちら(MAAD株式会社 WORKS)
https://maad.co.jp/works/KA▼オーナーコメント
この物件は、鎌倉・七里ヶ浜という立地がとても好きだったため購入しました。物件の魅力である「採光の良さ」と「ロケーション」を活かすため、ハウススタジオにしました。
MAAD株式会社にお願いした理由は、過去の事例の雰囲気がとてもよかったからです。また、初回打ち合わせの印象がとてもよく、費用も明確でしたので、安心感がありました。契約後の対応も、スムーズかつスピーディーでした。仕事というより、ひとつの作品として仕上げようとする姿勢を感じました。工事が終わった後も、色々な面で相談に乗ってもらえており、感謝しています。▼MAAD株式会社とは
外の世界や環境とのリズム 流れる空気や光 空間で得られる体験
2012年に建築家・一級建築士である村木計の個人事務所として創業。2023年11月、MAAD株式会社を設立しました。「外の世界や環境とのリズム 流れる空気や光 空間で得られる体験」をコンセプトに、様々な角度からイメージを広げ、ありたい姿を建築として表現し、そこで過ごす人や地域、社会と共にあり続ける空間を提供しています。これまでに、商業施設、飲食の店舗、ホテル、オフィス、投資ビルから、個人宅、別荘等の企画、デザイン、設計、ブランディングなど450件を超える案件を手掛けており、近年では国内のみならず海外からのオファーも増加しています。▼企業概要
株式会社MAAD
代表取締役(建築家・一級建築士):村木 計
創業:2012年4月
設立:2023年11月公式HP:https://maad.co.jp
Facebook:https://www.facebook.com/people/MAAD_Muraki-Architecture-and-Design/100057239867996
Instagram:https://www.instagram.com/maad.incjp
LinkedIn:https://www.linkedin.com/company/maadincjp
note:https://note.com/keimuraki▼建築家・一級建築士 村木計の略歴
1983年神奈川県生まれ、幼少期はメキシコやスペインに在住。慶應義塾大学大学院在籍中に隈研吾研究室に所属、師事。2008年、WORLD Space Creators Awards 2008 優秀賞を受賞。修士論文のテーマは、ポストモダンを考える - 建築家 ジャン・ヌーベルの詩学に関する分析 “A to Z” -。慶應義塾大学大学院 修士課程修了後、2012年村木計建築計画事務所を創業。2023年11月に法人化、MAAD株式会社を設立し、代表取締役に就任。本リリースに関するお問い合わせ先
MAAD株式会社 E-mail:pr@maad.co.jp TEL:03-6914-1217