マンションバルコニーに隔て板を2枚配置し、バルコニーからの落下防止とプライバシーを大幅に向上

有限会社エフユー設計は、マンションバルコニーからの転落事故防止と居住空間のプライバシー向上を両立させる新技術『二刀流隔て板』を開発し、特許を取得いたしました。45年のマンション設計キャリアを持つ代表 織田直毅が、住まいの安全と快適性を追求し辿り着いた新たなソリューションです。
【特許情報】
発明名称 集合住宅
特許権者 織田直毅
特許番号 特許第7783454号
登録日 令和7年12月1日
【開発の背景】
バルコニー転落死は、消費者庁の調査では32年間で134件(1993~2024)確認され、その7割以上で椅子や室外機の足がかりがあった。
またファミリータイプマンションのバルコニーは6畳以上の広さがあるものの、ほとんど有効に使われていない。その一因は隣戸とのプライバシーがボード1枚のため確保されていない落ち着きのなさだと思われる。
【技術の核心】
バルコニーの隣戸との境にある隔て板を、1m程度離して2枚設け緩衝部を設け、その部分にはメンテ時のみ腰窓等から出入りする。
既存の隔て板を2重にするにするという既存技術の組み合わせなので簡単に実現できる。
【もたらされる価値】
1.空調室外機を緩衝部に設けることにより転落事故を減らすことが期待される。
2.緩衝バルコニーを設けることにより、バルコニーのプライバシー・落ち着きを向上させ、有効活用が期待される。また緩衝部分に避難ハッチを設けることにより、メインのバルコニーの床段差をなくし、テーブル・チェアのガタツキも軽減される。
【今後の展開】
既存のマンションバルコニーにも隔て板を1枚追加することにより、新築に準じた効果が期待できる。
また2重にボードがあるので、非常時に弱者が破壊しにくい厚さのボードを薄くできる可能性がある。
最近、建替え事業中止・見合わせが相次ぎ、安易なスクラップ&ビルトの終焉が見込まれる中、既存の資源を最大活用することがトレンドになると思われる。この特許技術の採用により、既存マンションの価値アップと安全性の向上に寄与したい。

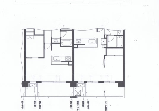
図に示す通りバルコニー境に隔て板1.2.を設置することによりメイン部分の質を向上させる
【会社概要】
社名 :有限会社エフユー設計
本社所在地:東京都千代田区神田小川町3ー11ー2
代表者 :織田直毅
連絡先 :odaodanaoki@gmail.com