フォレストブーケ作り体験! in 古民家宿コロク - ガブリエレワグナーさんを講師に迎え、8月1日(木)に開催
八ヶ岳の麓の歴史あふれる宿、古民家宿コロクで、「フォレストブーケ作り体験!」を8月1日(木)に開催します!※開催日が7月25日から8月1日に変更になりました。
このイベントは、「いつも頑張っている”わたし”に贈るお花」をテーマに、都会の喧騒をはなれて、お花に触れクリエイティブな気持ちになりたい方におすすめのイベントです。なんと古民家宿コロクにお得に宿泊できるプランもございます!

プログラム・内容
講師のガブリエレ先生と、建築家の彦根アンドレアさんがコラボし、古民家宿コロクにある植物や湘南から持ってきたお花を使い、お花と対話をしながらフォレストブーケを作ります。

ガブリエレ先生の作品

レッスンの様子
ガブリエレ先生はフラワーブーケの先生たちへ講師をするほどの方で、全国各地でデモンストレーション、レクチャー、レッスンなどを行いながら、常に色合わせにフォーカスを当てています。
“花の色を読む”というユニークなアプローチについて書いた著書は日本、ドイツ、台湾で出版されています。
参加者は4名限定で、彦根アンドレアさんが設計デザインした、「古民家宿コロク」に宿泊体験も可能です!
開催場所の古民家宿コロクについて
”建築と歴史を読む”そんな場所が、<古民家宿コロク>です。
八ヶ岳の麓、静かな農村に佇む築約100年の古民家が、建築家・彦根アンドレアさんのデザインによって丁寧に改装され、洗練された宿泊施設に生まれ変わりました。改修の痕跡を通して、日本の木造建築の歴史・工法・快適な暮らしを読み取る事ができます。

証明はインテリアにはイサム・ノグチのAKARI、椅子左はMG501 キューバチェア(カール・ハンセン&サン)
畑と庭の背景に南アルプスの甲斐駒ヶ岳を望むことがき、庭の奥にある丘へ進むと八ヶ岳も一望出来るため、マウンテンビューの滞在をお楽しみいただけます。

夕暮れ時、宿の灯りと八ヶ岳をセットで堪能。
お庭やテラス、室内リビングからも甲斐駒ヶ岳が見えます。

水風呂は五右衛門風呂で、外気浴が気持ち良い。
宿に併設されたプライベートサウナで壮大な星空のもとでととのうことができます。
アンドレアさん、ガブリエレ先生は同じ寝室のため、残り1つの寝室に2名様、和室に2名様でご就寝いただきます。

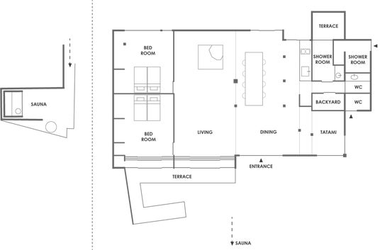
古民家宿コロクの図面

ひのきのベッドルーム
和紙のベッドルーム
畳のベッドルーム
イベントの詳細
[表: https://prtimes.jp/data/corp/115816/table/4_1_b3a2a453b3b8ab4693736f7fead12839.jpg ]
申込みはこちら
開催の背景
このイベントは、古民家宿コロクをデザインした、彦根アンドレアと、ガブリエレ先生の出会いがきっかけで企画されました。実はこのお二人、地元が同じという不思議なご縁があります。ドイツのボーデン湖地方のご出身で、大きな湖とブラックフォレスト、ライン川、ドナウ川という大自然に囲まれた、とても素敵な場所です。共通の友人からの紹介で、ガブリエレ先生のワークショップにアンドレアさんが参加をし、意気投合!そして、一緒に今回の企画を計画しました。
講師プロフィール

フラワーデザイナー:ワグナー 久保 ガブリエレ先生
日本と台湾で自身のセミナーとデモンストレーションを行いながら、定期的にヨーロッパへのツアーを企画、日本でのグレゴール・レルシュのレッスンを毎年プロデュースしている
1987 ドイツ国立花卉装飾専門学校ヴァイエンシュテファン卒業
1993 花阿彌に所属
恩師であるドイツのデザイナー、ゲアハルト・ナイティガー氏の日本デモンストレーション、講習会をコーディネート
日本におけるヨーロピアンデザインの指導に当たり、グレゴール・レルシュ、デトレフ・クラット、ウルズラ・ヴェゲナーらのデモンストレーション等を手がける
1997 IPM(国際花卉見本市、ドイツ・エッセン)の舞台でコメンテーターを務める。また日本からIPMへのフラワーデザインツアーを主催
2001 久保数政とともに花阿彌ブルーメンシューレを発足
2007 長崎ハウステンボス ブライダルブーケコンペティションにてデモンストレーションを行う
2007-2008 ドイツ・エッセンIPMにて花阿彌ブースをプロデュース
2009 横浜山手西洋館「花と器のハーモニー」にてエリスマン邸のコーディネーターを務める
2010 スウェーデンへの“モス”ツアーを主催
2015 ベルギー出版社Stichting主催の国際フラワーコンテスト「International Floral Art 2014/2015」の審査員を務める
2014 デザインマテリアルを中心とした輸出入を手掛ける会社GREENGABESを立ち上げる
2015 横浜山手西洋館「花と器のハーモニー」にてイギリス館のコーディネーターを務める
日本フラワーデザイン専門学校の講師となる
2017 スウェーデンUrnaturに"artist in nature"のアーティストとして招かれる
2018 台湾、NIFAに招かれ講師を務める
2019 中国、Leo Chung Floral Schoolに招かれ講師を務める
コーディネータープロフィール

建築家:彦根アンドレアさん
「快適な美しい心を動かす質が高い愛されてる夢がある環境と人間に優しいチャレンジ、冒険を感じられる建築を提供したい。」
ドイツ・コンスタンツ生まれ
1987 シュトゥットガルト工科大学 首席修了(建築・都市計画)
1988 團・青島建築設計事務所入所
1989 磯崎新アトリエ入所
1990 株式会社彦根建築設計事務所設立(彦根明と共に)
2011 日本エネルギーパス協会 副会長
2012 JIA(日本建築家協会)特別委員会 環境行動ラボ 会員
2014 EneArt設立
2014 武蔵野美術大学 非常勤講師
2020 一般社団法人サステナブル建築協会 理事長
「賞 歴」
1985 サッカースタジアム SCHINKEL-WETTBEWERB 1985/86 2nd Prize
1991 3.Prize of the international Design Competition for “A Spuare with a Monument” at KEIHANNA INTERACTION PLAZA INC
2008 IDIC PS岩手インフォメーションセンター(JIA環境建築賞 一般建築部門 最優秀賞 受賞)
2008 流・Ru 戸建住宅(木材活用コンクール 部門賞 受賞)
2009 曲・kyoku 戸建住宅(木材活用コンクール 優秀賞 受賞)
2010 風・Fuu 戸建住宅(JIA環境建築賞 住宅部門 優秀賞 受賞)
2019 まちの社員食堂 KRC 店舗(グッドデザイン賞 受賞)
2019 IDIC PS岩手インフォメーションセンター(第18回 JIA 25年賞 受賞)
2019 八ヶ岳山荘 SYA 戸建住宅(東京建築賞 奨励賞 受賞)
2019 日野わかくさ幼稚園 HWY 幼稚園(ウッドシティTOKYOモデル建築賞 優秀賞 受賞)
「著 作」
2009 「ナチュラル・サスティナブル 生きる建築のすがた」鹿島出版会
2011 「プランニングからディテールまで 最高の建築をつくるデザインのルール300」株式会社エクスナレッジ
2014 「彦根アンドレアの最高の住まいを作る方法」株式会社エクスナレッジ
株式会社atelier nennen
代表取締役:彦根藍矢