コワーキングスペース・レンタルオフィスのBIZcomfort(ビズコンフォート)を運営する、株式会社WOOC(読み方:ウォーク 、所在地:東京都品川区、代表取締役:阪谷 泰之 以下、WOOC)は、2024年8月1日(木)、シェアオフィス「BIZcomfort南越谷」をオープンします。当施設は、複合商業施設「トラビ南越谷」の6F・7Fに入り、東武スカイツリーライン「新越谷駅」西口徒歩1分、JR武蔵野線「南越谷駅」南口徒歩2分と好立地です。
▼BIZcomfort南越谷 内観イメージ


東京近郊のベッドタウンとして発展し続けている越谷。駅周辺には商店街や商業施設などが集積し、暮らしやすい住環境が整っているためファミリー層から人気を得ているエリアです。BIZcomfortは「職住近接」をコンセプトに、住宅地やベッドタウンなど生活に近い場所に積極的に展開し、リーズナブルかつ快適なテレワーク環境を提供していきたいと考えています。
また、日経BP 総合研究所 イノベーションICTラボの「ワークスタイルに関する動向・意識調査」によると、「仕事の内容や都合によって働く場所を使い分ける、『ハイブリッドワーク』が広がり始め」ていると分析されています。
出典:日経クロステック 2024年6月3日掲載
https://xtech.nikkei.com/atcl/nxt/column/18/02854/052900001/
広がりつつある「ハイブリッドワーク」需要にも応えられるよう、当施設はWEB会議ができるブースと集中して作業ができるブースを分けて細かくゾーニング。24時間365日いつでも使える利便性やアクセスの良い立地に加え、モニター席やWEB会議専用個室などの設備も充実させることで、働く方々のワークライフバランス向上の一助となるワークスポットを目指します。
BIZcomfort南越谷 内覧会・無料体験会 開催!
オープンを記念し、先行内覧会とコワーキングスペースの無料体験会を開催します。
【先行内覧会】 2024年8月1日(木)、2日(金)9:00~18:00(最終受付 17:30)
【無料体験会】 2024年8月4日(日)、5日(月)9:00~18:00(最終受付 17:30)
【予約期間】 2024年5月27日(火)~7月31日(水)
8月1日以降の内覧予約も随時受付しております。無料体験会は上記期間のみ予約可能です。
【利用方法】 BIZcomfort南越谷HPの内覧予約から希望の日時を選択し、必要事項を入力の上ご予約ください。 追ってこちらから確定日時を連絡いたします。
※メディア関係者の取材や撮影も大歓迎ですので、ぜひお気軽にお越しください。事前にご連絡をお願いいたします。
担当:株式会社 WOOC 田中(たなか) TEL:080-9183-6214 MAIL:pr@wooc.co.jp
▼BIZcomfort南越谷の特徴
特徴1. 駅徒歩1分! 24時間365日使えるシェアオフィス
新越谷駅西口徒歩1分の好立地で24時間365 日使えるため、出社前など朝早くから活動したい方や、帰宅前に集中して作業をしたい方など、ライフスタイルに合わせて活用できます。また、毎日使っても月12,100円(全日プラン)とリーズナブルなのも魅力です。

コワーキングスペースイメージ1.
特徴2. 用途に合わせてゾーニングされたコワーキングスペース
各席に間仕切りとモニターのあるワークブースは、作業に集中することができます。WEB会議と食事ができるカフェブースにはソファ席を設置。背景を気にせず会議や作業が進められます。周りを気にせず個室内で通話やWEB会議がしたいときにはテレフォンブース(予約制/有料)※1ご利用ください。
※1 月額会員のみ入室可

コワーキングスペースイメージ2.
特徴3. 完全個室のレンタルオフィスは個人事業主や法人のオフィスに
完全個室のレンタルオフィスは、広々快適かつ鍵付きの完全個室です。
通常のオフィスを借りると敷金などがかかりますが、当施設のレンタルオフィスでは一切不要※2。デスクやチェアも備え付けのため、法人化や起業もリーズナブルに叶います。当施設を登記先住所にすることも可能です。
※2 別途契約金が必要

1名用個室 イメージ
特徴4. 会議室や登記・ポストオプションも完備
6名用の会議室※3は大型モニターを設置しました。クライアントとの打合せや商談、面談・面接などにも使えます。ポストや登記オプション※4もあるため、個室を借りなくとも郵便物の受け取りや登記が可能です。BIZcomfortには各種許認可の対応実績もございます。
※3 予約制・有料
※4定額プラン契約必須・有料

6名用会議室 イメージ
特徴5.フリードリンクなど設備も充実
高速Wi-Fi 、無料プリンター、シュレッダーなど、ビジネスに欠かせないOA 機器の他、フリードリンクも用意しています。毎日通えば1日およそ400円※5で利用でき、カフェのコーヒー1杯程度の費用で、快適な作業環境を手に入れることができます。
※5全日プラン(12,100円)で30日間利用した場合

ドリンクコーナー イメージ
▼BIZcomfort南越谷 施設概要
住所:埼玉県越谷市南越谷4-11-5 トラビ南越谷6F・7F
アクセス:東武スカイツリーライン「新越谷駅」西口徒歩1分/JR武蔵野線「南越谷駅」南口徒歩2分
広さ : 376.51平方メートル (約113.88坪)
席数:【コワーキングスペース】36席/【レンタルオフィス】29戸
利用料金:
【コワーキングスペース】
全日プラン(24時間365日いつでも使える):12,100円/月
土日祝プラン(土日祝のみいつでも使える):5,500円/月
全拠点プラン(全国のBIZcomfortが全て使える):22,000円/月
埼玉プラン(埼玉県のBIZcomfortが全て使える):15,400円/月
ライトプラン(月額基本料2,200円を超えた分は1日ごとの従量課金制で使える):2,200円~/月
【レンタルオフィス】39,600円~/月※共益費込み ※部屋により異なる
設備:Wi-Fi、フリードリンク、無料プリンター、ロッカー、ポスト、登記可、会議室、WEB会議用個室
HP:https://bizcomfort.jp/saitama/minamikoshigaya.html
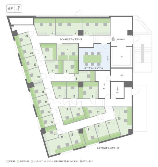
▼BIZcomfort南越谷 フロアマップ


▼BIZcomfortについて
近年は働き方が多様化し、フリーランスや副業、スタートアップなど、自分の特技や強みを生かした働き方を選択する人が増加しています。さらに企業側も、働き方改革の一環で、シェアオフィスを用いたテレワークの導入や、子育て・介護世代が自宅近くでも働けるサテライトオフィスを設置する傾向にあり、働くスタイルや意識が大きく変わろうとしています。
そんな背景の中、当社では”「はたらく」をもっと自由に快適に!”をコンセプトに、シェアオフィス「BIZcomfort」を運営。関東・関西を中心に、全国展開に向けて積極的に拡大しています。
東武スカイツリーライン沿線 の BIZcomfort ※一部
■BIZcomfort春日部木が連なる梁型のフレームや木目、漆喰などの自然素材感が「和み」の空間を演出。席ごとのデスク幅を広くとった、落ち着きのある作業スペースが好評。
住所:埼玉県春日部市中央1-8-15 春日部セントラル 1F・2F
HP:https://bizcomfort.jp/saitama/kasukabe.html

■TOBU×BIZcomfort竹ノ塚2024年4月、駅徒歩1分の竹ノ塚駅ビルにOPEN。
東武線を走る特急電車をイメージしたデザイン性の高いオフィスです。
住所:東京都足立区竹ノ塚6丁目6番1号 竹ノ塚駅ビル2F・3F
HP:https://bizcomfort.jp/tokyo/takenotsuka.html

【WOOC 会社概要】
商号:株式会社WOOC(ウォーク)
代表:代表取締役 阪谷 泰之
本社所在地:東京都品川区西五反田2-30-4 BR五反田ビル7F
電話:03-5789-3323
設立:2008年9月
資本金:17,510万円(資本準備金8,255万円含む)
年間売上高:16期 5,964,181(千円)
店舗数:レンタルオフィス159拠点・コワーキングスペース153拠点(提携店舗・新規オープン予定を含む)
従業員数:計 172名(社員68名・パート104名)※2024年6月時点
事業内容:レンタルオフィス・コワーキングスペース事業/住宅サブリース事業/リフォーム・リノベーション事業/不動産管理・仲介事業/不動産売買仲介事業
公式HP:https://www.wooc.co.jp/
【WOOCのSDGsについて】
(https://www.wooc.co.jp/sustainability.html) ;
WOOCは、事業の中心となる「空室再生」と「シェアオフィスの運営」を通じて、SDGsの達成にむけた取組みを推進しています。シェアオフィス「BIZcomfort」は、あらゆる人がどこでも働ける環境を提供すべく、都心やターミナルだけではなく、住宅地や郊外などへの展開を行っています。労働生産性の向上や多様な働き方をサポートし、持続的な「働きがい」や「経済成長」に貢献します。
