総合不動産企業リスト株式会社(代表取締役社長:北見尚之、本社所在地:神奈川県横浜市)の連結子会社であるリストホームズ株式会社(代表取締役社長:杉本敦史、本社所在地:神奈川県横浜市)は、IoTを導入した「リストガーデン武蔵新城セキュリティ・タウン(以下、本物件)」全10棟を2024年6月下旬より販売開始しました。

外観完成予想CG ※掲載の外観完成予想CGは設計段階の図面を基に描いたもので実際とは異なります。外観の細部・設備機器・配管類および電柱・道路標識・周辺建物等は省略または白線にて簡略化しております。各種部材につきましては、実際と質感・色等の見え方が異なる場合があります。※植栽については特定の季節の状況を表現したものではなく、竣工時には完成予想CG程度には成長しておりません。
本物件はIoTを導入し、マンションと比較して防犯面が劣りがちな戸建でも安心して快適にお住まいいただける住宅を目指しました。多路線利用可能で都心へのアクセスが良い武蔵小杉・溝の口エリアの中間に位置し、駅周辺はマンションや3階建ての戸建が多く、建物や人が密集している印象があることから、防犯に特化した戸建の必要性を感じ企画を行いました。
また、本物件においては神奈川県内でも比較的地価が高いエリアに位置するため7,000万円を超える価格帯が想定されていました。その中で、リストホームズ株式会社の市場調査では、物件の価格帯が上がるにつれて防犯の意識が高まる傾向にあることが分かっており、かつ本物件は防犯面を考慮してマンションと比較されやすいと想定されたため、防犯面を強化することで物件の価値を高めることができると考えました。
区画図

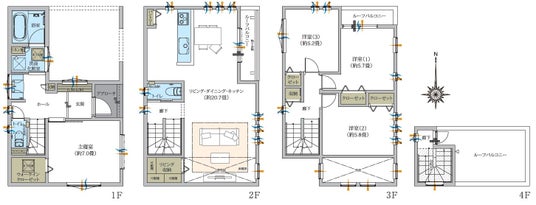
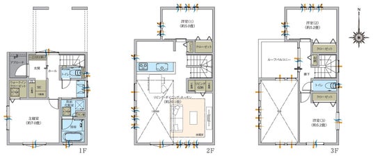
間取図
・1号棟
屋上の広々としたルーフバルコニーやリビングの開放的な吹き抜けが魅力

・10号棟
大きな吹き抜けとルーフバルコニーがあり、3階建てでもゆとりある暮らしが実現できる

本物件で叶う防犯対策の一例
・外部音声の確認や夜間暗視、動体検知時の自動録画の機能をもつ高機能屋外カメラ
・分譲地を照らすスポットライトを用いることで空間照度を確保し夜間でも分譲地全体が明るい設計
・来客時はスマートフォンやタブレットのみで対応するため子どもによる誤操作を防ぐことができる
・インターフォンは24時間録画機能付で防犯カメラの代わりとしての役割も果たす
・スマートフォン等からLDKの照明や電動シャッターを操作でき不在時でも在宅を装うことができる
物件概要
[表: https://prtimes.jp/data/corp/11000/table/150_1_9d5b6319035d3d516521d520c3138e75.jpg ]
【リストホームズ株式会社】
所在地:神奈川県横浜市中区尾上町 4-47
代表:代表取締役社長 杉本 敦史(すぎもと あつし)
設立:2017年4月12日
事業概要:戸建住宅の企画、開発、分譲、設計、施工、請負および監理、既存住宅のリフォーム
URL:https://listhomes.jp/
【リスト株式会社】
所在地:神奈川県横浜市中区尾上町4-47
代表:代表取締役社長 北見 尚之(きたみ ひさし)
創業:1991年5月10日
設立:2016年5月20日
連結売上高:465億円(2023年12月期)
事業概要:持株会社、グループ経営事業
URL:https://www.list.co.jp/
1991 年、不動産仲介業を行うリスト株式会社を設立。以降、戸建住宅・マンションの開発分譲事業、アセットマネジメント事業など一貫して不動産関連事業を行っております。また、2016 年からは、グループ会社の再編を行い持株会社制度に移行し、当社を中核とした「リストグループ」としての経営体制に移行しました。
2010 年には、現リストインターナショナルリアルティ株式会社において世界最大級のオークションハウスである「サザビーズ」を起源とする不動産仲介ブランド「サザビーズ インターナショナル リアルティ(R)」の国内独占営業権を取得し、「リスト サザビーズ インターナショナル リアルティ」のブランドで、アメリカ ハワイ州を皮切りに、シンガポール、香港、タイで不動産仲介事業や開発事業を行っております。リストグループでは、これらの事業を通じてお客様に「価値ある不動産」を提供し続けてまいります。