日鉄興和不動産株式会社(本社:東京都港区、代表取締役社長:三輪 正浩)は、都心プライムエリアの不動産を取り扱う「赤坂サロン」を2025年1月25日にオープンし、東京都目黒区三田二丁目にて建設中の『グランリビオ恵比寿(以下、本物件)』の案内会を同日より開始いたしました。

▲『グランリビオ恵比寿』外観完成予想CG
本物件は、JR「恵比寿」駅から徒歩7分、「恵比寿ガーデンプレイス」まで徒歩3分の閑静な邸宅地に誕生する、地上5階建て・総戸数16戸の低層レジデンスです。華やぎとは一線を画すこの地にふさわしい建築美を追求し、「Private Collection」をテーマにデザイン。共用部の壁面には風合い豊かな大理石トラバーチンを採用。アート作品が空間を彩り、日本の工芸を代表するオリジナルの西陣織が壁面を装います。また全10タイプの住戸プランはすべてワイドスパンで計画し、開放感のある居住空間を実現しています。
2024年11月25日(月)のエントリー受付開始から現在(1月22日時点)までのエントリー数は2,160件超を記録し、2025年1月25日(土)より開始した案内会についても多数のご予約をいただくなど高い関心をお寄せいただいております。なお、本物件の販売開始は2025年2月下旬以降を予定しております。

▲「ギャラリーラウンジ」完成予想CG
▲「エントランスホール」完成予想CG

▲「Iタイプ ホワイエ」完成予想CG
▲「Iタイプ リビング」完成予想CG

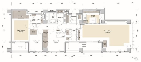
▲「Iタイプ 間取り図」
【Iタイプ概要】
専有面積:184.24平方メートル
間取り:3LDK+3WIC+Foyer(駐車場付設)
バルコニー面積:22.69平方メートル
■『グランリビオ恵比寿』物件概要
物件名称 :グランリビオ恵比寿
所在地 :東京都目黒区三田二丁目200番3(地番)
交通 :JR山手線・埼京線・湘南新宿ライン「恵比寿」駅徒歩7分
東京メトロ日比谷線「恵比寿」駅徒歩8分
総戸数 :16戸(うち広告募集対象外住戸1戸含む)
敷地面積 :784.33平方メートル
構造・規模:鉄筋コンクリート造・地上 5階建
間取り :1LDK(44.12平方メートル )~3LDK(184.24平方メートル )
事業主 :日鉄興和不動産株式会社
設計者 :株式会社IAO竹田設計
施工者 :松井建設株式会社
竣工予定 :2026年01月下旬(予定)
物件HP :https://livio-sumai.jp/pj/ebisu/
■「赤坂サロン」について
当社はこの度、都心プライムエリアにおける邸宅需要にお応えするためのサロンを港区赤坂に開設しました。香りや音、テクスチャー等にもこだわった空間で、お客さまお一人お一人に寄り添ったおもてなしを提供いたします。

▲「レセプション」
▲「ラウンジ」
■「赤坂サロン」概要
所在地 :東京都港区赤坂(以下、非公開)
営業時間:10~18時
定休日 :火曜日、水曜日、木曜日(祝日を除く)
■都市型ハイグレードレジデンス「グランリビオ」について
日鉄興和不動産の提供する分譲マンションシリーズの中でも特別な存在である「グランリビオ」。2021年のリブランディング以降は表参道、市谷砂土原、浜田山で供給してきました。
時代が移り変わっても、邸宅として新たな価値を描き続けるために。“時を綴る、特別な一邸を”をコンセプトに、街との向き合い方から設計・意匠のあり方に至るまで、グランリビオを形づくる標として7つのデザインコードを定めて計画しています。
昨今のマンション需要の高まりを受け、外国人向け高級賃貸マンション「HOMAT」を長年手掛けてきた実績と、みずほフィナンシャルグループおよび日本製鉄グループをバックボーンとした用地取得力を活かし、今後とも「グランリビオ」シリーズを供給してまいります。(2025年1月現在、御殿山、花房山など複数の高額マンション用地を取得済み。)
・「グランリビオ」HP:https://sumai.nskre.co.jp/grandlivio/