【京阪 伏見稲荷駅から徒歩1分】食とおみやげの世界発信型商業施設がグランドオープン
株式会社OICY(大阪市西区南堀江1-11-21-8F 代表取締役社長 谷角 速斗)は、京阪伏見稲荷駅より徒歩1分に世界に誇る日本の食文化やお土産プロダクトが集合した世界発信型商業施設【伏見稲荷OICYビレッジ】をオープンいたします。1階は伏見稲荷初出店の飲食店11店舗、2階は伏見稲荷から世界発信する展示会型のお土産ショップ【伏見稲荷おみやげ横丁】で構成されています。

■施設ロゴ
鳥居や伏見稲荷の地図の形、そして伏見稲荷大社の起源に関わる
白い鳥をモチーフにした象徴的な可愛らしい頃デザイン。

■入口の鳥居をモチーフにしたゲートを抜けて、開放的な中庭へ繋がります。
■メインエントランスと中庭




■1階フードコート
■2階:伏見稲荷おみやげ横丁


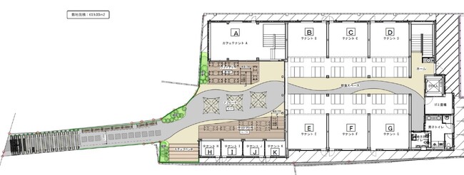
■施設施設概要
【1階】エントランス、フードコート


【2階】物販、おみやげ販売
【屋上】:テラス席、休憩スペース

■1階 飲食店フードコートエリア
1Fには約11の飲食店が出店。食べ歩きのフード、各店こだわりの一皿からスイーツまでをフードコート形式で楽しめるフロアになります。
【出店テナント(順不同)】
◇店舗名:TORIKI BURGER(トリキバーガー)(関西初出店)
概要:関西初出店となる鳥貴族の新業態チキンバーガー専門店
◇店舗名:Wagyu Sushi Roll(国内初出店)
概要:和牛のスシロール専門店
◇店舗名:mocca(国内初出店)
概要:エスプーマを使ったオリジナルスイーツ・ジェラート、そうめん
◇店舗名:名代宇奈とと・釜心うどん希楽
概要:鰻と手打ちうどん業態
◇店舗名:ラーメン まこと屋
概要:国内外で展開している牛骨ラーメン
◇店舗名:私のカレ(国内初出店)
概要:カレー・カレーパン
◇店舗名:FOV DRINK STAND(国内初出店)
概要:アイシングクッキーソフトクリームやドリンク
◇店舗名: せんから屋(関西初出店)
概要:浅草で人気の煎餅を衣にした唐揚げ
◇店舗名:唐揚げ小錦(国内初出店)
概要:元大関小錦開発のBBQソースで作る唐揚げ
◇店舗名: ペゴパ(国内初出店)
概要:韓国おでん、トッポギ
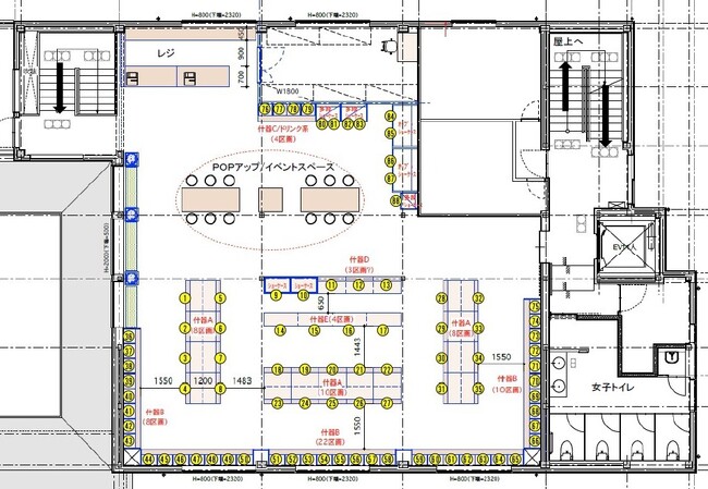
■2階 伏見稲荷おみやげ横丁
2階には【伏見稲荷おみやげ横丁】として約90に区切られた各スペースを、出店者がアレンジをし伏見稲荷を拠点に世界発信をしていくおみやげ売場。お菓子・雑貨・アパレル・コスメ・アート作品など様々な商品が揃う展示会型のお土産ショップになります。
各プロダクト同士の横の繋がりを意識したコミュニティーとしても連動し、様々なイベント企画・ポップアップイベント・ライブコマース拠点として、今までには無い日本プロダクトの世界発信拠点となります。
【出店企業(順不同)】
◇店舗名:GETA LABO
概要:京都発の一本歯下駄専門店
◇店舗名:京都しゃぼんや
概要:Made in Kyotoの石鹸や無添加コスメ
◇店舗名:近為
概要:京の漬もん処
◇店舗名:純米酒粕 玉乃光/無垢muku
概要:酒粕スイーツ
◇店舗名:銀座に志かわ
概要:高級食パン、ラスク
◇店舗名:魔法企画(メンヘラの壁)
概要:大阪発アパレルブランド
◇店舗名:4PreMarket
概要:原材料の特色を活かしたお土産
◇店舗名:OIMON WEST(口福堂商店)
概要:熟成焼き芋専門店
◇店舗名:小川がトドける
概要:和菓子、フロランタン最中
◇店舗名:食べる瞑想tsubara
概要:米粉菓子店
◇店舗名:有明産業株式会社
概要:熟成用樽製品
◇店舗名:ソーシャルラバーズ株式会社
概要:菓子・雑貨セレクトショップ
◇店舗名:株式会社セイショウ
概要:京野菜を楽しむ店舗
◇店舗名:AkaraN
概要:安心・高品質の日本製コスメブランド
◇店舗名:Sou_smile
概要:オリジナルTシャツ作成
◇店舗名:locushoe(ロカシュー)
概要:靴・革製品のサスティナブルグッズ
◇店舗名:Shop Nippon
概要:越境ECアンテナショップ
◇店舗名:京西陣菓匠 宗禅
概要:上技物あられ処、菓子
◇店舗名:淡路島ばあむ工房 maaru factory
概要:淡路島の特産品を使用したバームクーヘン
◇店舗名:株式会社デリセクト
概要:食用コオロギを使用した七味唐辛子、かりんとう、玄米餅
◇店舗名:屋久杉の龍神パワースポット
概要:開運塗絵
◇店舗名:Common Style
概要:ハイブリット着物、帯ベルト
◇店舗名:一夢庵
概要:刀剣武家羊羹、羊羹切日本刀ナイフ
◇店舗名:株式会社カンブライト
概要:高級缶詰商品、缶詰プロダクト企画・開発
◇店舗名:apoptosis
概要:日本茶プロダクト企画・開発
◇店舗名:株式会社Beide.F
概要:ハンドメイドアート・ジュエリー
◇店舗名:Gloves DEPO
概要:手袋、靴下セレクトショップ
◇店舗名:法善寺あられ
概要:おかきとあられの専門店
◇店舗名:SUP STAND FUKUOKA
概要:クリエーターセレクトショップ
◇店舗名:まいにち株式会社
概要:アートトワレ(災害用トイレ×アート)、洗剤
◇店舗名:エンづくり研究所
概要:日本のものづくりセレクトショップ
◇店舗名:株式会社Yorozuya
概要:ハラルラーメン
■ 施設概要
施設名称:伏見稲荷OICY(オイシー)ビレッジ
所在地:京都市伏見区深草一ノ坪町13-5
店舗数:【1F飲食店】11 店舗、【2F物販】50~80店舗
営業時間:9:00~22:00 (店舗営業時間は店舗により異なる)
公式HP:https://www.fushimiinarioicyvillage.com/
アクセス:京阪本線 伏見稲荷駅 徒歩1分/JR奈良線 稲荷駅 徒歩3分
敷地面積:619.03m²(187.25坪)
建築面積:383.04m²(115.86坪)
構造:S造、地上2階(屋上有)
事業主:KYOTO CEMOHINODE合同会社(京都セモヒノデ)
企画、運営管理、テナントリーシング:株式会社OICY(https://oicy-inc.com/)
基本設計:株式会社engine 轟 貴弘(https://www.engine-inc.jp)
内装監理:株式会社aidia-room 能登谷 充央(https://www.aidia-room.com/)

■施設プロデュース、ビジネスモデル構築
店舗ビジネスプロデューサー:株式会社オフィスヤマカワ 山川 博史
【施設開発の経緯】
日本を代表とする観光スポット「伏見稲荷」。その伏見稲荷周辺をリサーチした結果、旅行者から伏見稲荷大社を参拝した後に休憩をしたり日本の食やプロダクトにゆっくりと触れ合うことができる場所が欲しいという意見をたくさん頂きました。インバウンド人気観光ランキングでも上位である伏見稲荷に来て頂き、休憩スペースがあることで滞在時間が伸び、地域での経済活性化やブランディングの拠点としても貢献できる施設を目指します。
また、この特徴ある魅力的な伏見稲荷エリアにおいて、地元の人々が大切に守り続けてきた伝統やブランドを世界へ発信できるビジネスの拠点、更にはプロダクト同士の横の繋がりを意識したコミュニティーとしても連動し、様々なイベント企画・ポップアップイベント・ライブコマース拠点として今までには無い日本プロダクトの世界発信拠点となります。
当施設は京都の観光名所である伏見稲荷地区の発展に貢献し、今後の日本のインバウンド産業のシン・モデル施設として、全国の観光都市の開発の布石になればと考えております。