子供から大人まで幅広い世代対象。3つのゲームを楽しみながら考える力を鍛える。
星ソムリエが考案したゲーム。スマホばかり見ておらず、空を見上げて欲しい。そして、自身のしがらみを取り除き、宇宙を感じ地球全体(どんな場所でも)で遊び、学んで欲しい。意識を変えれば誰でも楽しい人生が過ごせる。その想いを多くの方に届けれないかと考え、この度、楽しみながら考える力が身につくカードゲームを考案しました。
家族や仲間内、初めて会う方などのコミュニケーションを膨らませるツールとしてご利用頂けましたら嬉しく思います。
私も子供達と一緒に沢山遊んでいます。ゲームを通じ知らなかった情報を得る事もあり、遊びながら、子供たちはこんな事を考えているんだなぁーなど、親として学ぶ事もあり、楽しむだけではなく、有意義な時間になると思います。
近年、様々な環境が激変し、日々の生活を過ごす事に手一杯になっている方を目にします。
その為か、本来の幸せを膨らませる脳の働き(考える力)が鈍くなっていると感じております。
是非、このゲームをキッカケに『考える力』を身につけましょう☆
Makuake応援購入はこちら↓
https://www.makuake.com/project/ksl_corporation/

頭の中のカメレオン【STORY】
幻のカメレオンは、めったに人前に姿を表すことはない。
ありとあらゆる姿・カタチ・色彩にも一瞬で変化できるほど
ふしぎなイキモノなのだ。
幻のカメレオンを見つけたものは世界一幸せになれると
言い伝えがあるほど、このカメレオンを発見したものは少ない…。
過去に見つけた者は、
エジプトのファラオ、ゼウス、天女にもなったとか…?!
そして今日はこのゲームの特別な参加者を募集しよう!
冒険者たちよ。さぁ、集まれ!
『頭の中のカメレオン』とは
幻のカメレオン役=引いたテーマカードの答えを「頭に浮かべる」
冒険者たちはそのカメレオンが頭に浮かべた「答えを当てにいく」ゲーム
特徴:幻のカメレオン役に質問を繰り返すことで、考える力(想像力)が自然に身につく。
対象年齢:6歳以上
対象人数:2人~
プレイ時間:1回5~10分程度(選択するテーマやプレイ人数によって異なります。)
いち早く話題のゲームを家族や友達と楽しみましょう☆彡
Let's have fun together.
[動画: https://www.youtube.com/watch?v=0iIHOHPq2io ]
『頭の中のカメレオン』はこんな楽しみ方がある☆
3つのゲームが楽しめ、同時に考える力を鍛えらる。EQも育つ?!
幅広い世代で楽しく遊べ、大人と子供が一緒に楽しみながら学ぶことが出来る。
ゲームを通じて、親子ですら知らなかった情報を得ることもある☆彡
スペシャルカード(とほほカード)の要素でよりゲームが面白くなる。
テーマカードやとほほカードに白紙カードを用意してあり、プレイヤーの数だけ遊び方は自由に膨らむ。


近年、様々な環境が激変した事により、日々の生活を過ごす事に手一杯になっている方々を目にします。その為か、本来の幸せを膨らませる脳(考える力)の働きが鈍くなっていると感じております。そこで『頭の中のカメレオン』では脳を運動させて、想像力を引き出し、考える力を鍛えるをコンセプトとしています。
このゲームが産まれたキッカケは子供達とのドライブ中に閃いたものです。
私は出来るだけ楽しい日々を過ごすをモットーにしています。そのため、家族で出かける際は特に子供たちとの時間を大切にしています。その出来事が起きたのは数年前の家族旅行だったと記憶しています。
子供たちとの会話中に私が一つ質問した事が始まりでした。
今、学校で何が流行ってるの?
お父さんの子供時代は放課後、警泥(泥警)や空想ゲームなどしていたよ。などと良くありがちな会話をしていたところ、子供たちから私が聞いたこともない遊び方が次々と飛び出したのです。
そこで、それらを組み合わせて何か新しいゲームが出来ないかと考え、それぞれのゲームの特徴と以前私が遊んでいた空想ゲームと掛け算をし、この『頭の中のカメレオン』が出来上がりました。
まさに昭和×平成×令和のトリプルコラボレーションです。
幅広い方に遊んで頂けたらと思います。
是非、お爺ちゃん、お婆ちゃん、親、子の三世代で遊びながら、考える力を鍛えましょう!
※妻の故郷である長崎県壱岐島への次男の離島留学をキッカケに、壱岐市教育長とお話しをさせて頂く機会が増えました。
そこで子供の教育面を『教える』から『引き出す』時代にしたい。とのお話しに共鳴した事もあり、何らかの形として作れないか(残せないか)と考えた作品です。

1人は幻のカメレオンになりきり、冒険者たちに頭の中の考えを発見されないようにしよう!
カメレオン以外の冒険者たちは力を合わせ、たったひとつの幻のカメレオンを見つけよう。
見つけたその瞬間、カメレオンのカラダが黄金(こがね)色に輝き、虹が溢れ、周囲を幸せにする…。
さぁ!幻のカメレオン探しの始まりだ!

・カメレオン役(ディーラー)一人と冒険者たち(プレイヤー)を「じゃんけん」にて決める。最初に勝った人が最初のカメレオン役となる。それ以外の方が冒険者となる。幻のカメレオンを見つける順番は2番目に「じゃんけん」に勝った方となり、1番はじめに幻のカメレオンを探せる権利を得る。以下の順番決めはじゃんけん順もしくは時計周り順とする。

・「テーマカード」を集め、テーマが見えないようにシャッフルし場に置く。この時、「とほほカード」は省いておき裏面に伏せて置く。
※とほほカードとはペナルティカードの事。ゲームを盛り上げる要素の一つとして取り入れています。

・カメレオン役がテーマカードを一枚引きGAMEがスタートする。テーマカードを冒険者たちにが見えるよう場に置く。


・カメレオン役は引いたテーマの解答を頭の中で考え、それを間違いないようにアンサーカードに記載しておく。その際、冒険者側に見られないように注意しよう。

※同封のペンを使用し、アンサーカードに記入する。(何度も使用出来るようになっています。)

・冒険者は順番にカメレオンが頭の中で決めたテーマを見つけに行こう。
例:引いたテーマカードを『好きな果物』とします。またカメレオン側が頭の中で考えたテーマは『いちご』とします。

冒険者たちは一人ずつカメレオンに答えだろう果物を最初に伝えます。それを聞いたカメレオンは答えがあっているか、あっていないかを「はい」or「いいえ」で答えます。
「はい」の場合はその時点でゲームが終了し、幻のカメレオンを見つけた冒険者がゲームを続ける場合、次のカメレオンとなる。「いいえ」の場合はカメレオンに一つ質問できる。
(4人でゲームを楽しんでいると設定します。)

冒険者1.Aー「答えはバナナですか?」
カメレオンー「いいえ」
冒険者1.Qー「その果物は赤色ですか?」
カメレオンー「はい」

カメレオンー「はい」
冒険者2.Aー「答えはさくらんぼですか?」
カメレオンー「いいえ」
冒険者2.Qー「その果物の形は四角いですか?」
カメレオンー「いいえ」

※ゲームが進行していく上で冒険者が答えを中々導き出せない場合にヒントカードを用意しています。また使用方法はゲームプレイ中に1回、冒険者側への使用が認められます。(使用するタイミングは冒険者たちで相談して決める。)
冒険者たちー「ヒントをお願いします」

カメレオンー「つぶつぶがある」
冒険者3.Aー「その果物はいちごですか?」

カメレオンー「正解」
このように、答え、質問(ヒント)をカメレオンに繰り返し冒険者側が問いかけ、少しづつ答えを導きだしていきましょう。幻のカメレオンを速く見つけ出すには冒険者側の協力が必要となってきます。ゲームを楽しみながら、頭で考え、脳の運動をしていきましょう!
【付属品】
テーマカード(39枚)
スペシャルカード(とほほカード)(7枚)
アンサーカード(2枚)
ヒントカード(1枚)
自由テーマカード(3枚)
ジョーカー(3枚)
説明書(1枚)
ペン(1本)

頭の中のカメレオン(想像力を引き出せる)EQも育つ!?
トランプとしても遊べる
中学受験に必要レベルの英単語を遊びながら学ぶことが出来る
ちょっとしたマジックが出来る(ジョーカー当てマジック)
【会社概要】
KSL Corporation株式会社(所在地:愛知県名古屋市、代表取締役:鬼頭和秀)は遊びながら想像力を引き出すゲーム『頭の中のカメレオン』をMakuakeにて7月2日から8月30日の間、先行発売いたします。
カメレオン役(1名)が引いたテーマカードの答えを頭に浮かべ、周りの冒険者たちが質問をしながら「答えを当てにいく」ゲームです。幅広い世代と一緒に楽しめ、同時に考える力を鍛えられます。
※『頭の中のカメレオン』は文字表記・カメレオンデザインを商標登録しております。
事業内容:教育・イベント関連事業(代行営業)サロン経営など
エステサロン心美堂/pharaoh
オンラインサロン&セレクトショップ millennium friend
真珠とロザリオの専門店 pharaoh81
現在、星ソムリエの観点を踏まえ、自叙伝(今を生き抜く力を身につける為にするべき行動)を執筆中。
下記写真は愛知県にあるプラネタリウムgallery(故、岡本太郎氏と共鳴し合った世界遺産の画家・塩澤文男が制作した12星座の原画が展示されている名古屋唯一のgalleryとしても近年話題となっている。
是非、お近くにお越しの際はお立ち寄りください。(完全予約制)
お問合せ先:http://www.ksl-corp.com/


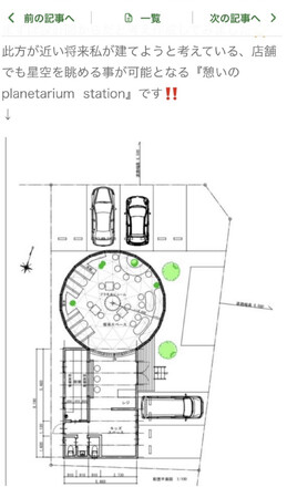
私の夢は地上に星座を描く事。
京都府宮津周辺にイヤシロチ化のプラネタリウムドームハウスの建築を予定しています。
そこは誰もが自由に使用することが出来、角がない世界でご縁を繋ぐ、テンセグリティな場所を築きたいと考えている。。
1000年先も残していきたい想いにて、自身も思い入れのある土地のひとつである天橋立付近を検討している。
原点回帰!!人と人が繋がる場所をコンセプトとし、そこで集まる人々に、仕事もプライベートも繋がる世界を築きたいと考えます。
今回の頭の中のカメレオンは、ドームハウス構築の第一歩となります。パッケージデザインのカメレオンは地球を表していて、中央に日本が描かれています。
そして、そこに輝く場所を描きました。私はそこにドームハウスを建てる計画です。
まだまだ道のりは長いですが、一歩一歩あゆみをとめる事はありません。どんどんとチャレンジをしていきますので何卒、応援宜しくお願い致します。
星ソムリエが考案したカードゲーム☆彡
頭の中のカメレオン
送料無料キャンペーン中!!
クラファン終了後(2023年8月31日より)下記ECサイトにて販売開始!!
Makuake応援購入はこちら↓
【https://www.makuake.com/project/ksl_corporation/】
タイトル:頭の中のカメレオン
考案者:星空 和
クラファン開始:2023年7月2(日)~2023年8月30(水)
15%OFFにて先行購入のチャンス!!(超早期割 税込1,496円送料込み)
いち早く話題のゲームを家族や友達と楽しみましょう☆彡
価格:定価1,760円(本体1,600円+税10%)
発売日:2023年8月31日(木)~発売START!!
発売場所:ECサイト【https://kslcorp.base.ec】