株式会社福原コーポレーションは北品川旧東海道通り沿いにワインダイニング“ HONSEN ” (ホンセン) をオープンいたします。
東に海、西に肥沃な大地が広がる品川は古くから海と野の幸に恵まれ、宿場町として栄えた江戸時代より多彩な食文化が育まれてきました。このたび古田島駿人、田村玲介、鯨岡大悟のジャンルの異なる3人の若手料理人が、地域の豊かな食材を独創性あふれるエキサイティングなコース料理に仕立てました。
またソムリエがお勧めする個性的なワイン、ノンアルコールのペアリング、こだわりのビール日本酒など選りすぐりを取り揃えお料理と共にお楽しみいただけます。北品川旧東海道の情緒あふれる街道、料理人とソムリエが創り上げる五感に響くひとさら一皿とワインのマリアージュ、そしてスタッフ全員のおもてなしで心温まる時間をお届けします。
■料理の一例

料理長 古田島 駿人(こたじま はやと)

田村 玲介(たむら れいすけ)

鯨岡 大悟(くじらおか だいご)

本田 優望(ほんだ ゆうみ)

■前菜の一例

■お野菜とお魚の一例

■お肉料理の一例

■店舗内観


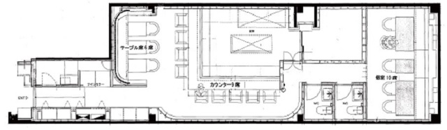
■店舗レイアウト

【MENU】
・月替わりのコース料理 8,800 円
スープ 前菜 お野菜とお魚 お肉 お口直しパスタ 〆のブイヤベースライスの6品
【デザート・コーヒー】
・デザート 770円
・コーヒー 660円
・ハーブティ 660円
・デザート&コーヒー 1,100円
【ワイン】
・ペアリング4種 4,950円(スパークリングワイン+3種)
・ペアリング5種 6,600円・8,800 円(シャンパーニュ+4種)
・グラスワイン 1,320円~
・ワインボトル 6,600円~
【ノンアルコール】
・ペアリング4種 4,950円
【その他】
日本酒、生ビール、ソフトドリンクなど各種ご用意しております
※価格には消費税を含んでいます

【グランドオープン】
2023 年 9 月15日(金)
【 HONSEN (ホンセン)】
■住所
東京都品川区北品川 1-22-15-1F(京浜急行北品川駅より徒歩3分 Ab・de・F跡)
■電話番号
050-1808-5677
■営業時間
・火~金曜日
17:00-23:00(L.O.21:00)
・土曜日
12:00-15:00
17:00-23:00(L.O.21:00)
■定休日
日・月曜日
■SNS(Instagram)
@honsen_kitashina
■客席数
カウンター席 9席/テーブル席 6席/個室 10席
このニュースに関するお問い合わせは、福原コーポレーション鈴木・長岡までお願いします。
Mail:gastronomy@fkginza.co.jp