大阪・服部緑地内にレンタルスタジオ & ランナーズロッカーシャワー施設が誕生!緑に囲まれた多目的スタジオで、ヨガ・ダンス・ピアノ音楽・会議など可能

自然に囲まれた空間で、ヨガ・ピアノ演奏会・合唱コーラス・ビジネス会議・ダンスなど多目的にご利用可能です。
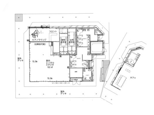
株式会社BEACHTOWN(本社:東京都、代表取締役:丸山正剛)は、大阪府府営公園の服部緑地において「BEACHTOWN服部緑地」をオープンします。BEACHTOWN服部緑地は、服部緑地の中央にあるレストハウス内にオープンする「レンタルスタジオ & ランナーズロッカーシャワー」です。緑に囲まれたレンタルスタジオでは、ヨガ・ピラティス・ダンス・カルチャー教室・会議やミーティングなど多目的にご利用いただけます。またピアノラウンジ(ヤマハ グランドピアノ C2Xを設置)では発表会や演奏会などご利用いただけます。ランナーズロッカーシャワーは、1回利用も可能です。
本事業では、スポーツという枠を超えた異文化交流や、人とふれあう地域コミュニティを楽しむサービスを予定しております。また服部緑地に新たに整備されるレストハウスを活用した公園における新たな過ごし方・楽しみ方を提案することで、豊中エリアの価値向上を目指してまいります。

豊中市の公共公園「服部緑地」のレストハウス改修事業に伴い、レンタルスタジオを開業します。
1. レンタルスタジオ&ランナーズロッカーシャワー事業の概要
(1)オープン日:2026年4月1日
(2)施設名:BEACHTOWN 服部緑地
(3)所在地:〒561-0873 大阪府豊中市服部緑地1−6(レストハウス内)
御堂筋線「緑地公園駅」下車、西口改札口から徒歩7分ほど

(4)施設概要:
・多目的レンタルスタジオ
(ヨガ・ダンス・カルチャー・会議など)102平方メートル
・ピアノラウンジ(ヤマハ グランドピアノ C2X)
・ランナー・サイクリスト用ロッカー&シャワー
(男女各2基 合計4基)
・ヨガマット・プロジェクター・スクリーン
・会議用デスイスのレンタルあり

自然光が入り、撮影にも適した環境。服部緑地公園内という希少なロケーションです。

ヤマハのグランドピアノ「C2X」ヤマハコンサートグランドピアノ"CFX"の遺伝子を受け継いだ新しいグランドピアノ
(5)営業時間:平日(月木金)9時~12時、13時~17時・土日祝8時~12時、13時~16時
(6)URL:https://hattoriryokuchi.beachtown.co.jp
(7)オープン記念「レンタルスタジオ定期利用キャンペーン」のご案内
U R L:https://hattoriryokuchi.beachtown.co.jp/_files/ugd/0c15f8_dfacc64dc7cf48d89b0cd4584cb731fc.pdf
(8)運営事業者:
1.会社名 株式会社BEACHTOWN
2.代表者 丸山 正剛
3.本社所在地 〒130-0026 東京都墨田区両国2-10-14 両国シティコア
4.U R L https://beachtown.co.jp
5.設立 2008年6月
報道関係者さまおよび関係者向け「内覧会」のお知らせ(ご予約不要)
施設のオープンに先立ち、3月31日(火)午前10時~18時で「BEACHTOWN服部緑地」の内覧会を開催いたします。ぜひご取材お願い申し上げます。(ご予約不要)
内覧会のご案内
日時:3月31日(火)10 時~18 時 (ご予約不要)
アクセス:https://maps.app.goo.gl/j2FQ38bsZiP1H9Sq9
〒561-0873 大阪府豊中市服部緑地1−6(レストハウス内)
(電車でお越しの方)
御堂筋線「緑地公園駅」下車、西口改札口から徒歩7分ほど
(車でお越しの方)
服部緑地第4駐車場から100m、徒歩1分
(バスでお越しの方)
阪急バス「服部緑地西口」停留所から徒歩7分ほど
内容:施設紹介・撮影・詳しいご説明やスタッフインタビューも可能です。
<報道関係者さまお問い合わせ先>
BEACHTOWN 服部緑地
お問い合わせ先: PR担当 出町
TEL:050-1784-7092(平日10時~17時)
MAIL:hattoriryokuchi@beachtown.co.jp