建築知識ビルダーズ編集部及び著名建築家・教授などで構成される審査会の厳正な審査を経て選出
1917年(大正6年) 創業、100年超の歴史を有する岡崎製材株式会社(本社:愛知県岡崎市 代表取締役:八田 欣也、以下「同社」という)が、建築知識ビルダーズの作品コンテスト「日本エコハウス大賞」に初挑戦し、集合住宅・小規模施設部門にて奨励賞を初受賞した。

【日本エコハウス大賞2024】「奨励賞」を受賞|超省エネ次世代戦略型オフィス「オフィス・ラボ」
建築・デザインなどを雑誌・書籍・メディアの形で発信する出版社:株式会社エクスナレッジ(本社:東京都港区六本木7-2-26、代表:澤井 聖一)の季刊住宅専門誌「建築知識ビルダーズ」が主催する日本エコハウス大賞に、同社が設計・施工し2024年4月に竣工した次世代戦略型オフィス「総合センター|オフィス・ラボ」(以下「オフィス・ラボ」)をエントリー。日本トップレベルの高性能設計で超省エネを実現したオフィス・ラボが、日本エコハウス大賞の審査員から高く評価され、奨励賞に選ばれた。

オフィス・ラボの外観

オフィス・ラボの内観
日本エコハウス大賞
株式会社エクスナレッジが発行する季刊住宅専門誌「建築知識ビルダーズ」が主催する、脱炭素時代の美しい住宅を表彰する設計実例コンテスト。私たちの未来の暮らしを支えるエコ住宅のあり方を考える。
▼日本エコハウス大賞
https://builders-ecohouse.jp/
▼株式会社エクスナレッジ
https://www.xknowledge.co.jp/home
総合センター|オフィス・ラボ
所 在 地:〒444-0005愛知県岡崎市岡町字下野川62
旧事務所開設:1988年/昭和63年
階 数:2階建て
構 造:木造在来軸組工法
最 高 高 さ:7.176m
敷 地 面 積:430.13平方メートル (130.11坪)
建 物 面 積:230.77平方メートル (69.81坪)
延 床 面 積:362.87平方メートル (109.77坪)
同社は、オフィス・ラボを次世代型オフィス空間のモデル棟として活用し、様々なデータ測定・蓄積や社会実験を行いながら、建設業界に於けるGXや地域の事業者ニーズレベルに合わせて最適なオフィス環境の提案を推進する。

建て替え前の旧事務所
一石十鳥 次世代戦略型オフィス「オフィス・ラボ」のポイント
●超省エネ・光熱費を約50%削減|お財布に優しいコスト削減オフィスの実現
建築プロフェッショナルが選び抜いた最新技術・製品を採用した昨今のエネルギー高・将来的なリスクにも負けない超省エネオフィス
●世界最先端レベルの高気密・高断熱性能|”冬あたたかい、夏すずしい”を実現
断熱性能:UA値0.21 ・ 気密性能:C値0.09|日本最高レベルを大幅クリアし世界最先端レベルの性能を実現
●地球にやさしい自然の力を活用する「パッシブデザイン」とエネルギー効率の最適化(太陽光発電)
電力会社のエネルギーに頼らず自然のエネルギー(太陽熱・太陽光・風など)を活用した地球にやさしい設計・パッシブデザインを採用
●働く環境の物理的・空間的改善|ストレスフリーな環境整備
社員が働きながら健康増進・well-beingを実現する(鼻詰まり・花粉症・冷え性などの改善効果)
●地震大国日本でも安心の「耐震等級3」|社員・地域の"命と財産"を守る
東南海地震に備え「許容応力度計算」で耐震等級の中でも最も安全性の高い耐震性を確保、社員の命と財産を守る
●BCP・熱中症対策|太陽光発電などのエネルギー創出と自家消費
太陽光発電・蓄電池・EV・V2H活用で巨大地震など有事・災害時にも安心|シャワールームは熱中症対策にも効果的
●ワークスペース(職場)とスターバックス流「Third Place」両立の社会実験
2階や畳コーナー、キッチン&ダイニングで北欧式「fika(フィーカ)」やラテン式「siesta(シエスタ)」等を取り入れ多様な働き方に挑戦
●建設業界に於けるGX提案|非住宅に於ける省エネオフィスの実現
環境対策のひとつとしてオフィス・ラボの効果を可視化し、建設業に於けるGXの具体的な施策・取組みのひとつとして提案
●今が旬のトレンド“オフィスの木質化” 無垢を活かしたウッドデザインオフィス
インテリアコーディネーターがこだわり抜いたデザイン性でオフィスの木質化・木材活用を実現(カウンター、テーブル、階段等)
●百聞は一見に如かず|体感型モデルオフィスとしていつでも見学可能
建物・空間は「体感して初めて気づく・理解する」ことが多いため、オフィス・ラボをモデルオフィスとしていつでも活用していただける

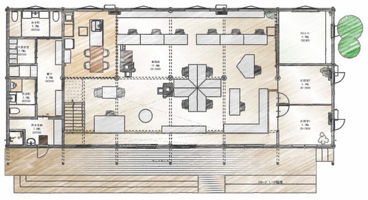
オフィス・ラボ平面図(1F)

オフィス・ラボ平面図(2F)
設計コンセプト
01 長寿命100年仕様|木材・建材・施工のプロフェッショナルがこだわり選び抜いた最新鋭仕様
明治時代から続く伝統的な木造校舎を模した、いつの時代も愛される建物外観。
高耐久性や長期的なメンテナンス性を考慮した工法と建材選定。
日本一"材木屋らしくない"ホテルのようにスタイリッシュでカフェのようにくつろげる空間を目指し、メンテナンス性を重視した内装仕様。
02 高機能・高性能・超省エネ|光熱費を約50%削減する高性能仕様と太陽光発電・蓄電池・EV活用による自給自足システム
世界トップクラスの欧州基準をクリアする高断熱性能と高気密設計。
自然のエネルギーを活用した、環境先進国ドイツ発祥のパッシブデザインを採用。
電力会社のエネルギー・電力に頼りきらない超省エネ性能を実現。
03 オフィス・ラボとして社会実験の場に|建設業界に於けるGX提案
建築業界でも一般的になっていない「長寿命・高性能オフィス」を自ら社会実験の場として活用。
主に太陽光発電をはじめ毎日オフィスのあらゆるデータを毎日計測・蓄積し、超省エネ・最適化を研究し提案する。
さらに、fikaやsiestaなど「働き方」まで実験的に取り組み、新しいオフィスの在り方・働き方を世界に発信するラボ機能を兼ねる。

社員が自然と集うダイニングキッチン

ガラス張りでありながら防音性の高い応接・会議室

ミーティングにも、休憩にも、十人十色で使える畳コーナー

勉強会に、地域交流に、多様に使えるフリースペース
性能/シミュレーション
●外皮平均熱還流率(UA値):0.21 等級7・HEAT20 G3を上回る高性能

UA値は国内最高レベル
●C値:0.09 国が定める基準はないが一般的に高気密と評価される「C値1.0」を大幅に上回る高性能

C値は大手ハウスメーカーなどのレベルを大幅に上回る
●光熱費:平成28年基準の一般的なオフィスに比べて光熱費50%削減

年間光熱費を約50%削減する省エネを実現
岡崎製材株式会社(代表取締役 八田欣也、愛知県岡崎市戸崎元町4番地1)
創業1917年(大正6年)、100年超の歴史を有する愛知県岡崎市の老舗材木屋。一流の目利きが世界中から仕入れた多種多様な無垢材は200樹種・5万点を超え、日本一の保有量を誇る。脈々と受け継ぐ材木知識・経験により歴代の目利きが世界中から揃えた銘木は、丁寧に製材・乾燥・加工され豊富なラインナップとして保管しており、お客様のご要望に合わせて「あなただけの一点」をご提案する。
また、愛知県を中心に建築木材・資材等の卸売り、リノベーションや不動産、木製品の製造・販売など、建築や住まいに関わる多種多様な商品・サービスをワンストップで提供。地元密着の「最適住環境企業」を掲げる会社である。
【HP】https://www.okazaki-seizai.co.jp/
【公式オンラインSHOP】https://okazaki-seizai.myshopify.com/
【会社紹介】
[動画: https://www.youtube.com/watch?v=lnLWuhfzHpE ]
【お問い合わせ先】
岡崎製材株式会社
経営企画室 上田萌子
TEL: 0564-51-0861(代表)
MAIL:m.ueda@okazaki-seizai.co.jp
【過去プレスリリース一覧】※抜粋
■【第3弾】ファンケル×老舗材木屋コラボ企画 | 春を彩る「さくら色」の無垢端材を活用した生活雑貨をファンケルオンラインで販売
https://prtimes.jp/main/html/rd/p/000000004.000096178.html
■銘木・無垢の端材から材木屋オリジナル”お祝いバットmini”を開発 | プロ野球開幕に合わせ3月25日より数量限定で販売
https://prtimes.jp/main/html/rd/p/000000003.000096178.html
■老舗材木屋が銘木・無垢材から超本格マイバット「お祝いバットPro」を開発 | 1本100万円の超高級銘木バットも限定販売!
https://prtimes.jp/main/html/rd/p/000000005.000096178.html
■【地元の異色コラボレーション】名古屋フィギュアスケートフェスティバルのオフィシャルグッズを老舗材木屋が企画製作・販売します!
https://prtimes.jp/main/html/rd/p/000000006.000096178.html
■【コラボ企画】中日ドラゴンズ選手と折れたバットの”リメイク・ワークショップ”を実施
https://prtimes.jp/main/html/rd/p/000000007.000096178.html
■【老舗材木屋のSDGs活動】第5回 あいちサービス大賞「知事賞」受賞!!
https://prtimes.jp/main/html/rd/p/000000008.000096178.html
■【岡崎市の老舗材木屋】中京テレビ「キャッチ!」スタジオセット制作
https://prtimes.jp/main/html/rd/p/000000009.000096178.html
■【SDGs×スポーツ】もくスポ:でこぼこ卓球大会開催!! -自然の力で地域の親子を笑顔に-
https://prtimes.jp/main/html/rd/p/000000012.000096178.html
■【老舗材木屋×石屋の挑戦】"ミシュラン星付き店も認める高級素材"のお皿「Ki+Seki -木石-」を共同開発|Makuakeにてクラウドファンディング開始
https://prtimes.jp/main/html/rd/p/000000013.000096178.html
■岡崎製材株式会社がForbes JAPAN SMALL GIANTS AWARD 2023-2024でApril Dream特別賞を受賞
https://prtimes.jp/main/html/rd/p/000000014.000096178.html
■【GX最前線】光熱費50%削減を可能にする超省エネ新オフィス“一石十鳥”の次世代戦略型オフィス「オフィス・ラボ」が岡崎にオープン
https://prtimes.jp/main/html/rd/p/000000016.000096178.html
【補足 | 岡崎製材株式会社のメディア掲載実績(直近1年分)】
・東海ラジオ Weekend Step 2023年7月8日日
木の再利用とスポーツの新たな魅力を発見する|“SDGs×スポーツ”もくスポ:でこぼこ卓球大会
・東海テレビ 村上佳奈子の週間愛ちっち 2023年7月27日
きらり輝く!あいちサービス大賞|「木」からサステナブルな社会を実現
・中京テレビ 鈴木福のしあわせ羅針盤 2023年7月31日
でこぼこ卓球|こんな卓球見たことない!?球がどこへ飛ぶか?予想不可
・中日新聞 2023年8月9日
端材から誕生「キセキ(木石)」の食器|岡崎製材×稲垣石材店ブランド開発
・テレビ愛知 5時スタ 2023年10月6日
岡崎製材&稲垣石材店共同開発のKi+Seki-木石-特集
・東海テレビ NEWS ONE 2023年11月1日
材木屋とコラボ 新しい石の皿とは|Ki+Seki-木石-
・Forbes JAPAN Web 2023年12月20日
「木の復権」を目指して――創業100年を超える老舗材木屋5代目“アトツギ”の夢
・中日新聞 2024年2月12日
中日新聞社賞 岡崎製材(岡崎市)|木のミュージアム
・BS朝日 つながる絵本~for SDGs~ 2023年3月22日
岡崎製材・稲垣石材「自然素材の名タッグ」
・日刊木材新聞 2024年7月24日
木造の次世代戦略型オフィスを開設|超省エネ仕様で光熱費大幅削減へ
・日刊工業新聞 2024年5月8日
省エネ木造事務所竣工|岡崎製材、光熱費を半減
・ケーブルテレビミクスネットワーク 2024年5月17日
タウン通信|岡崎製材新オフィスオープン