森田アルミ工業株式会社(所在地:大阪府阪南市、代表取締役:森田和信)は、マルチフレームSCUAを1月14日より発売いたします。窓の外壁に設置したフレームに布団干しなどの機能性を持たせた新しい提案です。

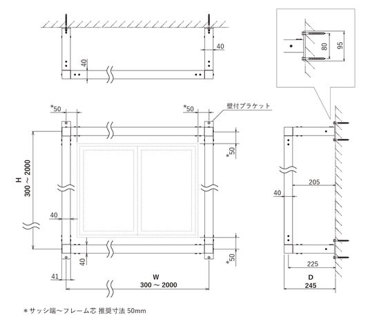
室内物干しワイヤー「pid4M」やアルミ巾木「fitbase」など、美しい建材を提案してきた森田アルミ工業が発売するマルチフレーム「SCUA」(スクア)は、窓の外壁に設置し、布団干しやシェードを取り付けられるフレームです。
布団干しとして
部屋干し環境や乾燥機が充実し、洗濯物の干し方も多様化してきているなかでも、お布団だけは太陽のもとで干したいものです。お庭やバルコニーがなくてもお布団が干したいという思いからSCUAは生まれました。

シェードを取り付けて暑さ対策に
年々厳しさを増す日本の夏。日差しの対策は室内だけでなく屋外にも必要です。SCUAの4辺のフレームには市販のシェードを取り付けいただけます。
お布団を干す窓は日当たりが良いはず。SCUAがあることで太陽の良いとこ取りができます。


窓辺のアクセント
縦横の寸法をすべてサイズオーダーで製作するため、フレームが窓サッシと一体の立方体のような印象を与えます。
壁付けブラケットの色とフレームの色を分けることが可能なため、淡色の外壁にはシルバー、濃色の外壁にはブラックの壁付けブラケットを選択することで、フレーム部分を際立たせることも可能です。
また、太陽の日差しを受けて外壁に伸びるフレームの影も、建物のアクセントに。


さらなるオプションの展開予定
窓辺に自然を取り入れられるプランターや、リラックスタイムのためのテーブルなど、SCUAの機能を拡張するオプションを今後展開予定です。
※写真は開発中のものです。弊社オプション品(今後発売予定)以外で、同様の方法で使用しないでください。
最近は、バルコニーやテラスを設けない住宅が少しずつ増加傾向にあります。約40年バルコニー、テラスを作り続けてきた森田アルミだからこその提案を準備中です。


製品概要

[表: https://prtimes.jp/data/corp/41880/table/27_1_00c4c76f7e442fae44a1be4ece95b394.jpg ]
製品ページ
詳細は商品ページをご覧ください。
URL:https://www.moritaalumi.co.jp/product/detail.php?id=58
□森田アルミ工業株式会社について
森田アルミ工業は室内・外のアルミ建材の製造販売を行っています。創業時はアルミの外階段などを製造していましたが、デザインに着目した、開発アプローチでインテリア商品をリリースしてきました。主力商品である室内物干しワイヤー「pid4M」は、必要な時だけワイヤーを引き出して使えて、部屋干しを快適にする建材としてロングセラーに。空間やインテリアに寄りそうデザインを目指し、人それぞれの生活に寄り添った商品づくりをしています。

□会社概要
会社名:森田アルミ工業株式会社
代表取締役社長:森田 和信
本社所在地:〒599-0201 大阪府阪南市尾崎町530-1
事業内容:室内・外のアルミ建材の製造販売、オフィス家具の製造販売
TEL:072-480-1400 / fax: 072-480-1414
URL:https://www.moritaalumi.co.jp
商品情報や施工事例をこちらでも配信しています
Instagram:https://www.instagram.com/moritaalumi_ex