ポラスグループ ポラス株式会社

ポラスグループ ポラス株式会社(本社:埼玉県越谷市 代表取締役:中内晃次郎)は2022年11月30日より、大学院や大学、高等専門学校、高等学校等に通う学生を対象に「第10回POLUS -ポラス- 学生・建築デザインコンペティション」を開催いたします。
本コンペティション(以下:コンペ)は2014年に、ポラスグループ創業45周年の記念事業の一つとして第1回を開催し、昨年の第9回は応募作品数539点と多くのご応募をいただき、将来の建築業界を背負う学生の、素晴らしいアイデアに触れることができました。
今回の第10回は、「いま、わたしたちにとって快適な木造の家」をテーマに、木の家による魅力的なアイデアを募集いたします。本コンペの実施を通じて、建築の道を志す学生の自由で新鮮な発想(アイデア)を表現・公表する機会を設け、将来活躍が期待される学生の方々を応援するとともに、建築業界の発展に貢献できればと考えております。
発表は、2023年6月中旬に開催予定の公開審査会会場で行うと共に、公式サイト に掲示します。また、応募作品の中から実物件への具現化の可能性も図ります。
公式サイト:https://kenchiku.co.jp/polu
[表: https://prtimes.jp/data/corp/9436/table/132_1_222b1afe307173cc6b34c801ee1cb622.jpg ]
「第10回 POLUS -ポラス- 学生・建築デザインコンペティション」概要
■主催 ポラス株式会社(https://www.polus.co.jp/)
■テーマ 「いま、わたしたちにとって快適な木造の家」
■審査委員
審査委員長
西沢 立衛 (横浜国立大学大学院Y-GSA 教授)
審査委員
今井 公太郎 (東京大学生産技術研究所 教授)
原田 真宏 (芝浦工業大学 教授)
中川 エリカ (中川エリカ建築設計事務所)
ポラス株式会社 社内審査委員1 名 以上5名
■賞
賞金総額 100万円
最優秀賞 1 点 50万円
優 秀 賞 1 点 20万円
入 選 3 点 各10万円
佳 作 数点 (賞状のみ)
■応募期間
2022年11月30日(水)~2023年5月8日(月)
■作品応募締切日
2023年5月8日(月)消印有効
※応募作品は郵便または宅配便を用い事務局宛に送付。持参は受け付けません。
■応募資格
2023年4月1日時点で、大学院、大学、短期大学、高等専門学校、専修学校(各種学校)、高等学校、等の学生である こと。
■作品条件
内容:「いま、わたしたちにとって快適な木造の家」のテーマに沿った作品
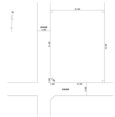
構造:木造 規模:敷地内に7世帯程度の住宅 敷地:別図参照
■登録方法
公式サイト〈 https://kenchiku.co.jp/polus 〉より応募登録をしてください。
■発表
2023年6月中旬予定の公開審査会会場で発表するとともに、公式サイトにて入賞結果を発表します。
<応募に関するお問い合わせ先>
POLUS -ポラス- 学生・建築デザインコンペティション事務局
(株)建報社内 公式 HP〈https://kenchiku.co.jp/polus〉
【別図】敷地:図のような環境にある区画です。

