バーチャルモデルルーム内覧可能(1R/Lタイプ、1LDK/Gタイプ、2LDK/Fタイプ)、2026年3月にはモデルルーム公開予定(1LDK/Jタイプ、2LDK/Fタイプ)。

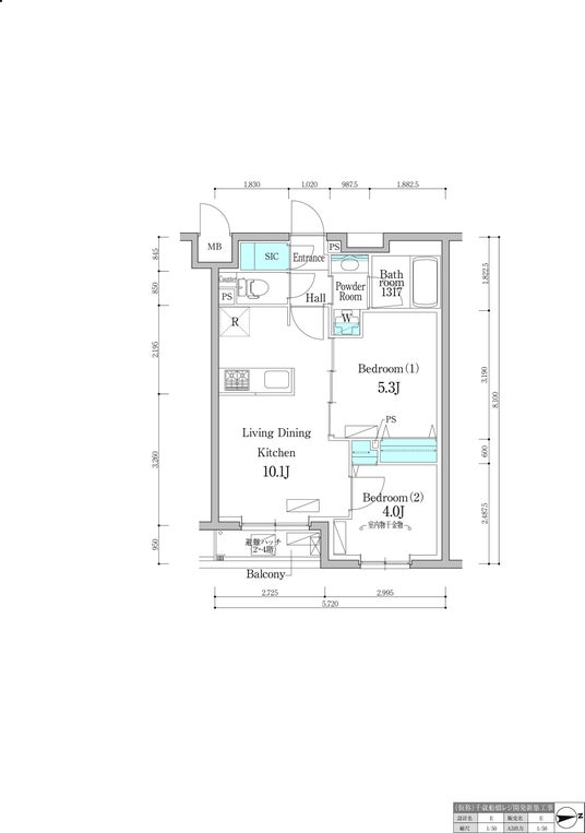
2LDK/Fタイプ/バーチャルモデルルーム
不動産投資事業、収益不動産開発事業、不動産賃貸業、リノベーションマンション分譲事業等を展開する株式会社フージャースアセットマネジメント(本社:東京都千代田区、代表取締役社長:小川栄一、以下「当社」)は、新築賃貸レジデンス「デュオフラッツ千歳船橋」の入居者の募集を開始しました。
なお、物件公式HPからバーチャルモデルルーム(1R/Lタイプ、1LDK/Gタイプ、2LDK/Fタイプ)の内覧が可能です。
2026年3月末にはモデルルーム(1LDK/Jタイプ、2LDK/Fタイプ)の公開も予定しています。
※モデルルームは変更になる可能性があります。
デュオフラッツ千歳船橋 公式HP
https://www.duo-flats.jp/residence/chitose-funabashi/
■物件の特徴
・全13タイプの多様な間取り
・柱の出っ張りがない壁式構造
・ホテルライクな内廊下

Eタイプ/LDK
Eタイプ/キッチン

Eタイプ/洗面
Eタイプ/ユニットバス
Eタイプ/SIC
■物件概要
住所:東京都世田谷区桜丘2丁目10
構造:RC造 地上4階建
総戸数:45戸
竣工日:2026年3月末(予定)
間取り:1R / 1K / 1DK / 1LDK / 2LDK / 3LDK
面積帯:25.21~60.94平方メートル
駐車場:なし ※身障者専用駐車場あり
バイク置場:あり
駐輪場:あり
■TOPICS
☆全13タイプの多様なプラン。ライフスタイルに合わせてお選びいただけます。

Eタイプ/2LDK
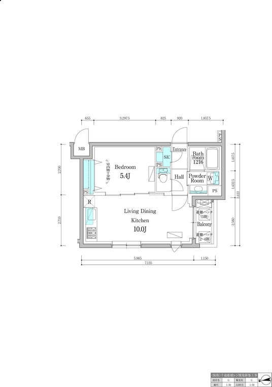
Gタイプ/1LDK
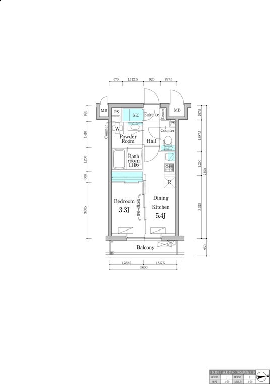
Jタイプ/1DK
☆充実の収納

Bタイプ/WIC
Bタイプ/SIC
Kタイプ/CL
☆バーチャルモデルルーム内覧ができます
バーチャルモデルルームをご用意しました。
内覧のお時間がなかなか取れない方や竣工前でも、お部屋のイメージを見ていただくことができます。
物件の公式ホームページよりご覧いただけますので、是非ご活用ください。
2026年3月末にはモデルルーム設置・公開も予定しております。
デュオフラッツ千歳船橋 公式HP
https://www.duo-flats.jp/residence/chitose-funabashi/
■デュオフラッツシリーズ
「新しい欲しかった暮らし」をコンセプトとし、全国に展開している賃貸マンションシリーズです。
物件ごとに間取り・仕様・デザインなど、どれをとっても顧客目線で考え抜いた物件ばかりです。物件の立地特性、お住まいになる方々の生活を細部まで紐解き、この住まいでどんな生活を楽しんでいただけるかを大事にしています。
デュオフラッツ公式HP
https://www.duo-flats.jp/
デュオフラッツ公式インスタグラム
https://www.instagram.com/duoflats_official?igsh=NzQydHBya2Z1MG9x&utm_source=qr
<株式会社フージャースアセットマネジメント 会社概要>
商 号 株式会社フージャースアセットマネジメント
本社所在地 東京都千代田区丸の内二丁目2番3号
設 立 2000年2月7日
事 業 内 容 不動産投資事業、収益不動産開発事業、不動産賃貸業
代表者氏名 小川 栄一
電 話 番 号 03-3243-2712
会 社 H P https://www.hoosiers.co.jp/company/guid/investment.html
本件に関するお問い合わせ先
株式会社フージャースアセットマネジメント
担当 松尾
03-3243-2712
m-ayano@hoosiers.co.jp