サッポロ不動産開発株式会社(本社:東京都渋谷区、代表取締役社長:宮澤 高就)は、渋谷区東三丁目で開発を進めていたオフィス・店舗複合ビル「Sreed EBISU+L(スリード エビス プラスエル)」を3月4日に竣工しました。本物件は、当社が恵比寿エリアで展開するSreedシリーズ※の6棟目となります。

■ 恵比寿まちづくり方針と「Sreed EBISU+L」について
当社は2025年12月に「恵比寿まちづくり戦略」を策定し、「ひらめきが生まれるまち」の実現に向けた多様なアクションを通じて、恵比寿エリアにおけるまちづくりを推進しています(https://www.sapporo-re.jp/news-release/2025/12185494/)。
「Sreed EBISU+L」の開発は、そのアクションの一つである「成長段階に応じた多様なオフィスの提供」を具体化する取組みであり、「Lamp for Tomorrow - まちにあかりを、人にひらめきを。」をテーマに掲げて進めてきました。物件名に含まれる「+L」は LAMP(ランプ)を意味し、「まちににぎわいと灯りをともし、このエリアにとって“ランプ”のような存在でありたい」という想いを込めています。1階の飲食店舗と前面空地では、にぎわいと温かさを感じられる空間演出を施し、さらに建物全体および外構照明により、周辺エリアにやわらかな明るさと安心感を届ける設えとしています。
建物内には、まちににぎわいを創出する飲食店舗に加え、スタートアップや成長企業の働き方を支えるセットアップオフィスおよびハーフセットアップオフィスを整備。スピード感ある事業成長や柔軟な組織運営に寄り添うワークプレイスとして、入居後すぐに利用できる機能性を備えた空間を提供します。特に、フルセットアップフロアでは、豊かな緑とフロアごとに異なるアーティストの作品を設置することで、「ひらめき」が生まれる創造的な環境を実現しています。
本物件は、恵比寿駅周辺で比較的人通りの少なかったエリアに、温かみのある明るい空間を創出するとともに、アーリーからミドルステージのスタートアップ企業が育つ新たな拠点となります。当社は今後も、企業の成長段階に応じた多様な働き方に対応する空間づくりを通じて、「働く」の視点からまちづくり方針である「ひらめきがうまれるまち」の実現を目指します。
■ オフィス概要
本物件では、入居者が快適に働き、創造的な時間を過ごせるよう、空間設計の細部にまでこだわりました。全フロアに安定したWi-Fi環境を完備し、会議室やオンライン会議用ブース、パントリーなど、日々の業務で必要となる機能を標準仕様として配置しています。照明にはサーカディアンリズム(概日リズム)に合わせて調光・調色が可能な機能を導入し、集中したい時間帯には明るくクリアな光を、夕方にはリラックスできる柔らかな光へと切り替え、心身への負担を軽減する光環境も設定できるなど、ストレスの少ないワークプレイスを実現しています。
フルセットアップオフィスにはデスクやチェアを備え付け、入居初日から業務を開始できる利便性を追求しました。スタートアップ企業の急速な成長に伴う人員増加にも対応できるよう、チーム内のコミュニケーションが自然と生まれる動線計画や、多様な働き方に合わせて柔軟に使える家具レイアウトを採用しました。少人数での集中作業からプロジェクト単位の協働まで、企業のフェーズに応じた働き方をスムーズに実現します。
また、原則として原状回復工事が不要となる設計により、移転時のコストや手間を大幅に軽減。柔軟かつスピーディーなオフィス移転を求めるスタートアップや成長企業にとって、さらなる事業成長を後押しするワークプレイスを提供します

セットアップオフィス
ハーフセットアップオフィス


■アートが働く人の感性を刺激する場づくり
本物件では、4つのフルセットアップフロアそれぞれに異なるアーティストの作品を設置し、空間ごとの個性と創造性を引き出すアート環境を整備しました。単なる装飾としてのアートの導入にとどまらず、まちづくりの一環として価値を創出する取組みとするため、当社、NOMAL ART COMPANY(ノーマルアートカンパニー) 、アーティストによる「恵比寿芸術会議室 by Sreed」プロジェクトチームを結成しました。
NOMAL ART COMPANYは、アートディレクションやコミュニティ型のアートプロジェクトを手がけるクリエイティブスタジオで、企業、地域、アーティストをつなぎながら空間価値の向上に取組んでいます。本プロジェクトでは、アーティストの選定や制作プロセスの伴走、恵比寿のまち文脈を踏まえたコンセプト設計など、アート導入の全体的なディレクションを担う中心的な役割を果たしました。
プロジェクトチームでは、アーティストの公募、現地でのフィールドワーク、Sreedシリーズで働くワーカーへのインタビューなどを実施。制作プロセスや活動の様子をSNSやチーム内に発信しながら、アートを通じて恵比寿のまちと協働する取り組みを進めてきました。こうしたプロセスを経て完成したアートは、まちの魅力を反映し、入居者の創造性やひらめきを促す空間価値として機能しています。
(各フロアのアート作品・作者紹介は別紙参照)
■ 働く人にやすらぎと刺激を与える緑
本物件では、オフィス空間に豊かな緑を取り入れることで、入居者の心身のリフレッシュだけでなく、集中力や創造力の向上にも寄与する環境づくりを目指しました。象徴的な存在としてベンジャミンをシンボルツリーに採用したほか、ルーバー植栽、造花アレンジなど、多様なグリーンを組み合わせることで、空間全体に自然の潤いと立体的な演出を施しています。


■ まちのにぎわいを育むイタリアンレストラン
本物件では、まちににぎわいと交流を生み出す拠点として、1階に開放的で心地よい雰囲気のイタリアンレストランを誘致し、2026年7月のオープンを予定しています。
出店するのは、Army Ant(東京都国分寺市、代表:船木 崚)で、国分寺・立川・渋谷・バンコクなどで計7店舗を展開しており、本物件が8店舗目となります。同社は、「場所起点の店舗づくり」を重視し、立地や周辺環境に最もふさわしい業態や空間を一から構想してきた企業です。
これまでにも、出店エリアの特性を丁寧に読み取りながら、小規模ながらも地域に親しまれる店舗を手がけてきました。新店舗では、恵比寿という多様な人々が行き交うまちの特性を活かし、落ち着きと活気を併せ持つ空間構成とすることで、通りからも自然に立ち寄れる開放的な店舗デザインを計画しています。
メニューはピザを中心に構成し、20~30代をはじめとする幅広い層に親しまれることを目指します。また、上階のオフィスワーカーや近隣住民、周辺店舗とのつながりを育みながら、まちのにぎわいを広げていく場としての役割を担っていきます。

<建物概要>
[表: https://prtimes.jp/data/corp/16744/table/171_1_f5193d12fa56297233cdac33ce043783.jpg?v=202603190445 ]
<オフィス概要>
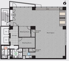
- 賃貸面積:187.05平方メートル (56.58坪)
- 想定人数:20~40人
- 会議室:フルセットアップ 2室(6名用・8名用)、ハーフセットアップ 1室
- オンライン会議用ブース:フルセットアップ 2室、ハーフセットアップ 1室
- 男女別トイレ、パントリー付き
- 天井仕様:スケルトン(一部ボード張り)
- 床:OAフロア(H=40mm)
- 通信設備:建物専用Wi-Fi完備
- 天井高:3,420mm(一部2,600mm)
- 電気容量:60VA/平方メートル
※ Sreed EBISU+L開発秘話:https://www.sapporo-re.jp/area-relations/article/03195898/
※ Sreed シリーズ
「発芽するワークプレイス」をコンセプトに、挑戦する企業・チーム・個人に、ビジネスの種を芽吹かせ成長していく場を提供したいという想いから誕生したサッポロ不動産開発が展開するオフィスブランド。クリエイティビティを活性化するデザイン、アップデートされた安全・安心を追求し、まちや人とのつながりを意識した環境を創造することをコンセプトとしています。Sreedの名前は、当社の英文表記の頭文字「SRE / Sapporo Real Estate」と「Seed /種子」を掛け合わせ、これから大きく成長していく企業を支えるオフィスでありたいと願い、名付けています。本物件には、つながる、創造する、育む、彩る、協業する、セレンディピティの予感に満ちたワークプレイスとなるよう思いを込めています。これまでの「Sreedシリーズ」の物件は以下のサイトをご覧ください。
Sreed series | サッポロ不動産開発株式会社 (sapporo-re.jp)
※本物件に関連するリリース
- 渋谷区東3丁目土地の取得:https://www.sapporo-re.jp/news-release/2024/08263622/
- 「渋谷区東3丁目開発プロジェクト 」安全祈願祭実施:https://www.sapporo-re.jp/news-release/2024/10243614/
- 渋谷区東3丁目の開発中のオフィスビル「Sreed EBISU+L」に決定:https://www.sapporo-re.jp/news-release/2025/05272070/
【別紙:各フロアのアート作品】
<2Fフロア>
アートのコンセプト
しなやかで知的な力強さと、強さとリラックスの両面を感じるオアシス
繊細な線画の作風が持ち味の山代の作品。当作品は恵比寿の「オアシス」をテーマに、美しくもエッジさを感じられる様、あえてモノクロームで描き出している。主役のジャガーを中心に、舞う鳥たちや小動物、流れる線や植物は空間にポジティブなエネルギーの循環を生み、見る人に強さとリラックスの両面を感じさせるよう設計された。ジャガーにはしなやかで知的な力強さを、ケツァールやカワセミ、ハミングバードには自由・幸福・可能性といった象徴的なメッセージを託している。

アーティスト紹介
・山代 エンナ(YAMASHIRO ENNA)|イラストレーター・画家
主に人物、動植物、風景など線画をベースとした作風を得意とし、広告、旅行、ファッションやコスメブランドとのコラボレーション、ファッション誌、ミュージシャンのアートワーク等さまざまな分野でイラストレーションを手掛ける。近年では百貨店を中心に個展を開催、画家として原画作品の発表も精力的に行う。
<3Fフロア>
アートのコンセプト
交差と反復から生まれる、新しい視点
人間の自由な行為として、創作活動をする鷲尾友公の作品。恵比寿のベンチャーのイメージをした際に、⾊や線が重なり合うように、思考も出会いもまた、交差と反復の中で生まれる様をイメージした。その中で新しい視点が見つかるように、願いをこめている。

アーティスト紹介
・鷲尾 友公(WASHIO TOMOYUKI)|アーティスト
独学で絵画を学び、街との関係性を軸に人物や事象などと関わり合いながら、イラストやデザイン、アニメーションなどジャンルを問わず、制作活動を人間の自由な行為として捉え表現している。街や商店街でクロスジャンルなコラボレーターと音楽企画も展開する。手に目と鼻が描かれたオリジナルモチーフの「手君」を美術館や海外で発表するなど、活動は多領域にわたる。主な展覧会に「あいちトリエンナーレ2019」などがある 。
<9Fフロア>
アートのコンセプト
可能性の種としての、ビジネスへのエール
異なる⾊・形・素材を組み合わせることで、単体では見えなかった新たなモノの見え方を生み出す「コラージュ技法」を用いた作品。日本の器の形をアレンジし、恵比寿の街で見た建物の⾊を組み合わせた本作は、日本から世界へと広がる“可能性の種”としてのビジネスへのエールとなっている。

アーティスト紹介
・井上 陽子(INOUE YOKO)|イラストレーター、コラージュ作家
著書に『Ca va , ça vient』(主婦の友社)『紙と写真でつくるコラージュ』(雷鳥社)他、書籍表紙に『沈黙の人』(小池真理子著 文藝春秋)『ひとが詩人になるとき』(平川克美著 ミツイパブリッシング) 他多数。また「カキモリ」「a good view」の文具雑貨などに作品提供するほか、店舗やホテルなどのアートワークスも手掛ける。定期的に『IDEE shop』などのインテリアショップやギャラリーにて個展開催。
<10Fフロア>
アートのコンセプト
ビジネスと遊び心の二面性、真っ直ぐに突き抜ける
ストリートカルチャーへのリスペクトをベースに持つYUSEIの作品。当作品は恵比寿で働くワーカーらしい知的で清潔感を与えるブルーのストライプがベースになっているが、実はモチーフのモデルはラルフローレンのシャツ。実はストリートでも好まれるアイテムでもあり、ビジネスと遊び心の⼆面性を持って、真っ直ぐに突き抜けていくイメージを描いている。

アーティスト紹介
・佐川 友星 (SAGAWA YUSEI) |アーティスト・アートディレクター
フリースタイルを重視したライブペインティングやミューラルを得意とし、自然と都会的なイメージを融合したアブストラクトなスタイルで描く。 2024年には川崎市の国際友好使節としてクロアチア最大級のミューラルを完成させる。 また、アート集団「輪派絵師団」のメンバーとしての活動では東京2020オリンピックオフィシャルアートワークや数々の企業広告を手がける。国内外のアーティストを50組以上招聘したミューラルプロジェクトを成功させるなど、壁画中心の企画制作を担う。