ポラスグループ ポラス株式会社

ポラスグループ ポラス株式会社(本社:埼玉県越谷市、代表取締役:中内 晃次郎)は、大学院や大学、高等専門学校、高等学校等に通う学生を対象に 「第11 回POLUS-ポラス- 学生・建築デザインコンペティション」を開催いたします。
本コンペティション(以下:コンペ)は2014年に、ポラスグループ創業45周年の記念事業の一つとして第1 回を開催し、昨年の第10 回は応募作品数362 点と多くのご応募をいただき、将来の建築業界を背負う学生たちの素晴らしい発想に触れることができました。
第11 回は、「個が際立つ新しいシェアのまち」をテーマに、2023 年11 月30 日(木)から2024 年5 月9 日(木)にかけて木の家による魅力的な作品を募集いたします。また今回は、賞金総額を昨年の約2 倍となる205 万円へ大幅に増額し、RI 賞(実物件化プロジェクト候補作品の中から特に優秀な作品を表彰)、UJ 賞(大学院生・大学学部4 年生を除く応募者の中で特に優秀な作品を表彰)を新設しました。
本コンペを通して、建築の道を志す学生の自由で新鮮な発想を表現・公表する機会
を設け、将来活躍が期待される学生の方々を応援するとともに、建築業界のさらなる発
展に貢献したいと考えております。
発表は、2024 年6 月下旬に開催予定の公開審査会会場で行うと共に、公式サイトに掲示します。また、応募作品の中から実物件への具現化の可能性も図ります。
公式サイト:https://kenchiku.co.jp/polus
[表1: https://prtimes.jp/data/corp/9436/table/182_1_34ed3947b5bb6f744811ac1b30b42448.jpg ]
「第11 回 POLUS -ポラス- 学生・建築デザインコンペティション」概要
■主催
ポラス株式会社(https://www.polus.co.jp/)
■テーマ
「個が際立つ新しいシェアのまち」
■審査委員
審査委員長 西沢 立衛 (横浜国立大学大学院Y-GSA 教授)
審査委員 今井 公太郎 (東京大学生産技術研究所 教授)
原田 真宏 (芝浦工業大学建築学部建築学科 教授)
中川 エリカ (中川エリカ建築設計事務所)
ポラス 社内審査委員1 名
以上5 名
■賞
賞金総額 205 万円
最優秀賞 1 点 50 万円
優秀賞 1 点 30 万円
入選 3 点 各15 万円
佳作 5 点 各5 万円
R I 賞(Real Ideas award)※1 5 点 各5 万円
U J 賞(Under Junior award)※2 10 点 各3 万円
※1:実物件化プロジェクトの候補作品の中から特に優秀な5 作品。
※2:大学院生・大学学部4年生を除く応募者の中で特に優秀な10 作品。
■応募期間
2023 年11 月30 日(木)~2024 年5 月9 日(木)24:00
■応募資格
2024 年4 月1 日時点で、大学院、大学、短期大学、高等専門学校、専修学校(各種学校)、高等学校、等の学生であること。
■作品条件
内容:「個が際立つ新しいシェアのまち」のテーマに沿った作品
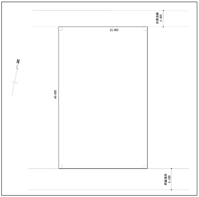
構造:木造 / 規模:7世帯程度の住宅 / 敷地:別図参照
■応募方法
公式サイト〈 https://kenchiku.co.jp/polus 〉より応募登録をしてください。
■発表
2024 年6 月下旬に行われる公開審査会会場で発表するとともに、公式サイトにて入賞結果を発表します。
[表2: https://prtimes.jp/data/corp/9436/table/182_2_7eb72cff60374d7a82ea34b5c3154e0b.jpg ]
【別図】敷地:図のような環境にある区画です。

