「Ones Home」は、地域関係者一押しの絶景ポイントに、第二のふるさととして毎年滞在できる権利を購入できるサービスです。今回の販売開始により「Ones Home」の滞在権の販売は4施設となります。
■ Ones Homeサービスへの登録の背景
当施設(かたしな高原)は、群馬県利根郡片品村にある歴史あるスキー場となっています。ウィンターシーズンは、関東唯一のスキーヤー専用スキー場として、またグリーンシーズンでは、ゲレンデや周辺の自然環境を活用したアクティビティで人気な施設となっています。大自然と創意工夫にあふれたアクティビティを、毎年気軽に楽しみに来ていただきたいという思いから、このたび、Ones Homeサービスに加わることといたしました。

キャビン全体写真/専用デッキがあり、ぜいたくな空間となっています
かたしな高原にあるスタイルキャビンは、ゲレンデを目の前にしたダイナミックな絶景を満喫できるグランピングトレーラーです。ゲレンデ内でのski in/ski outから発想を得た、デザイントレーラーハウスとなっています。


ウィンターシーズンは、キャビンから直接ゲレンデへ
スキー場が考える最適なトレーラーハウス。冬はski in ski outができ、キャビンからそのまま目の前にあるゲレンデに向かうことができます。
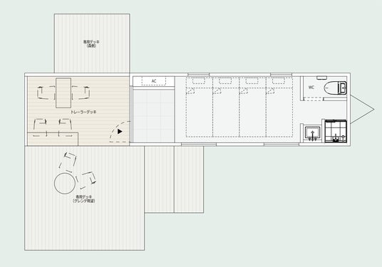
■ 平面レイアウト・景観
最大4名様が宿泊できる11mの特注大型キャビンです。
家族やグループで過ごすのにおススメです。室内は、天然木を中心とした手触り感のあるやさしい空間となっています。室内の窓や専用デッキからは、ダイナミックなゲレンデパノラマをお楽しみいただけます。そして、夕方以降の時間では、外のデッキでは美しい星空や近くを流れる小川の音のスケープを楽しみながら、極上の時をお過ごし頂けます。
そして、トイレ/シャワーが付いているので、室内での時間も充実しています。

【室内27.5平方メートル +大型専用デッキ】
■四季通じた豊富なアクティビティ
かたしな高原では、四季を通じて、大人も子どもも楽しめる多様なアクティビティを実施しています。
特に、しらかばサウナとゲレンデを駆け降りるマウンテンバイクが大変人気があります。

アクティビティ一覧
■お食事(オプション)
牛ステーキや上州もちぶた等の厳選食材に加え、野菜は100%自社ミッフィー農園の採れたて野菜。シェフ特製の選べるこだわりBBQソースでお召し上がりください。
また、BBQで食べる野菜を自分で収穫する「自採りBBQ」も実施しています。


■購入方法
1. Ones Home( https://oneshome.co.jp/ )へアクセス
2. 滞在したいふるさと(ロケーション)を選択し、施設詳細ページへ移動
3. 施設詳細ページの購入ボタンより購入専用ページに移動し、新規会員登録
4. 滞在したい日程を選択(2024年度(2024年4月~2025年3月)の日付を選択すると2025~2027年度まで自動選択されます)
5. 購入手続きに進み、クレジットカードにて決済
6. 購入完了メール取得後、ふるさとで滞在する権利を獲得
※購入後権利をNFT化するため手続き上、マイページに反映されるまで10日前後かかります
■宿泊権の価格
ふるさとを思い思いに楽しんでいただける2つのプランをご用意しております。
(最大1宿泊グループにつき4名まで利用可能で、人数変動はございません)

※税込価格となります。交通・食事代は別途必要です
■「Ones Home」事業について
当事業は、4年分の宿泊権を一括購入するライセンス形式の滞在プランです。特定の拠点に4年間の間、毎年1泊ずつ滞在することで、ご利用者に【新しいふるさと】をつくっていただきます。【新しいふるさと】とは、プライベートと非日常を大切に、エリアの本当の魅力を味わい何度も訪れたくなる地域・場所を指します。毎年同じ時期に同じ場所に滞在をすることで、帰りたくなるご自身のふるさとを見つけていただきたいと考えています。
特徴1. 心が安らぐ、楽しく過ごす、また帰りたくなる新しいふるさとが創れます
特徴2. 建物が建てられない建てにくい自然溢れる地域の絶景ポイントに滞在ができます
特徴3. 毎年滞在したくなる農林水産体験含む体験ができます
特徴4. グッドデザイン賞を受賞した一級建築士がデザインした快適な空間で過ごせます
特徴5. 滞在できない場合には、家族や友達にプレゼント、第三者への売却もできます
■取材に関するお問い合わせ
株式会社エリアノ 及び Ones Home事業に関するお問合せ先
お問合せ先:info@oneshome.co.jp
株式会社エリアノ 武田、勝呂
※現在、お電話での対応は準備中となりますので、メールでのお問い合わせの程をお願いいたします。