2024年8月15日(木)「eni.taniroku(エニ たにろく)」NEW OPEN!利便性の高い「谷町六丁目」に新たな都心型バケーションレンタルが誕生。マンション最上階で眺望◎【ご予約受付中】


大阪を中心に民泊施設を運営する株式会社LDKプロジェクト
(所在地:大阪府中央区、代表:生田博之)は2024年8月15日に
大阪「谷町六丁目」に新しい民泊施設
「eni. taniroku(エニ たにろく)」をオープンいたします。
・eni. taniroku について

今回新しくできた「eni. taniroku」は大阪メトロ「谷町六丁目」駅から徒歩2分の駅すぐ近くにあります。施設周辺は映画の撮影地としても有名な空堀商店街や大阪城を守備した真田幸村ゆかりの地として情緒あふれる街として大変賑わっています。
観光主要エリアである梅田や心斎橋も電車で一本という好立地。奈良へ向かう近鉄線も近いので関西観光の拠点としては最高のロケーションです。


マンション最上階のオーナーズルームにある当施設は、ワンフロア占有で他人の出入りもなく、マンションの一室ながらプライベート空間を保てるのが特徴です。また最上階という特徴を生かし、天井には天窓を設置。日の光が多角的に入る、明るく開放的な空間に仕上げました。
床面は白い大理石調の素材を使用する事で空間に高級感と清潔感をプラス。黒をアクセントとしたモダンでエッジのある家具や内装が引き立ちます。

洗面化粧室はダブルボウル仕様に。大人数での宿泊に対応できるよう、ミラー、ドライヤーもそれぞれ2つずつ設置しました。照明付きミラーは化粧のしやすさだけではなく洗面室全体の雰囲気を整えてくれます。また、洗濯機やアイロンも備えているので長期滞在でも安心です。
アメニティは女性の目線でセレクト。ドライヤーはパナソニックのイオニティを採用しています。


キッチンには充実したカトラリーのほか、ポットや電子レンジなどの従来の民泊の設備にくわえ土鍋や炊飯器 無料のコーヒーメーカーも用意。
リビングには空気清浄機を設置するなど、ゲストのさまざまなライフスタイルに寄り添えるよう工夫をこらしました。

・各寝室

洋室1

洋室1

洋室2

和室
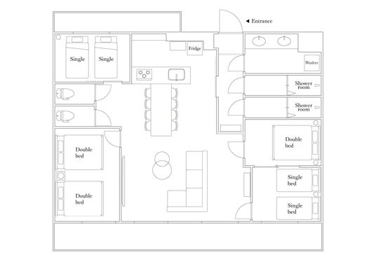
寝室は合計で4部屋あり、最大12名まで宿泊が可能です。洋室だけでなく和室も用意しているので、小さいお子様やベッドが苦手な方も安心です。(洋室1:ダブルベッド1台/洋室2:シングルベッド2台/洋室3:ダブルベッド2台/和室:布団2組/リビング:ダブルサイズソファベッド1台)

当施設のある「谷町六丁目」は古い歴史情緒あふれる街として大変人気のエリアです。立地の良さはもちろん、おいしい飲食店や古い建物を生かしたカフェ、セレクトショップで賑わっています。
きっと施設周辺を散策するだけでも楽しいはず。

「eni.taniroku」へのご予約お待ちしております。
・間取り図

<当施設の概要>
●施設名:eni. taniroku (エニ たにろく)
●住所 :〒542-0062 大阪府大阪市中央区上本町西一丁目3-4 グランピア永山701
●アクセス :大阪メトロ「谷町六丁目」駅から徒歩2分
●料金プラン:20,000円~
・eniとは

eni.のコンセプト
忙しい日々を離れて、人生をすこしだけステイしませんか。eni.(エニ)はニッポンのあたらしい滞在体験をつくる都市型バケーションレンタルです。ゆっくりとくつろげる空間づくりをいちばんに考えながら、思い出に残したくなる世界観とインテリアにもこだわりました。リラックスするほどに、本来のジブンを取り戻していく。旅する人たちの物語の1ページをつづる、そんな居場所になりたいと思います。

eni 公式Instagram
・わたしたちLDKプロジェクトについて

人生に綴られる ひとときをつくる
宿泊は「お客様の時間をお預かりして、快適で価値のある空間とサービスを提供すること」だと私たちは考えています。「また泊まりたい」と思ってもらえる施設をつくりたい。 設備やサービス、インテリア、清掃にいたるまで、 手を抜かず、心をこめる。訪れた人の「人生」 という物語の1ページになるような思い出に残る時間と体験ができる宿泊施設を提供します。
企 業 名 : 株式会社LDKプロジェクト
所 在 地 : 〒540-0017 大阪府大阪市中央区松屋町住吉6-26 eninal MACCHAMACHI 2F
代 表 者 : 代表取締役 生田博之
事業概要: 民泊施設の運営管理、レンタルスペースの運営管理、不動産賃貸業、清掃業務、貸別荘運
営、サウナ事業
公式HPへ
【民泊運営代行に関するご相談やご質問先】
使用していない部屋を活用したい、民泊に興味があるけれど知識もなく不安、実際に自分でもできるか確認したいなど些細な相談でもかまいません。業界最先端の大阪で長年民泊を営むLDKプロジェクトが丁寧にお答えします。お気軽にどうぞ!
【本件に関するお問合わせ・取材等のお申込み先】
株式会社LDKプロジェクト 運営管理担当
テレビや雑誌、新聞社様からの取材が増えております。
お気軽にお問合せくださいませ。
E-mail:marketing.div@ldk-pjt.com