サッポロ不動産開発株式会社(本社:東京都渋谷区、代表取締役社長:宮澤 高就 以下「サッポロ不動産開発」)は、西武信用金庫(本社:東京都中野区、代表者:高橋 一朗 以下「西武信用金庫」)が所有する「西武信用金庫恵比寿ビル」6階フロアを、新たな需要創出と物件の価値向上を目指し、内装・家具付きのセットアップオフィスとしてリニューアルしました。
西武信用金庫恵比寿ビルは、東京メトロ日比谷線恵比寿駅から徒歩1分の好立地に位置し、西武信用金庫の恵比寿支店とオフィスから構成される複合ビルです。今回、6階フロアのテナントの退去を受けて、サッポロ不動産開発は、西武信用金庫に新たな貸し方としてセットアップオフィスを提案しました。6階フロアの内装を一新し、セットアップオフィス化することで、築年数の経過した物件のリーシング競争力を高めると共に、恵比寿において増加しているスタートアップのオフィスニーズに沿った執務空間を提供することを目指しました。
西武信用金庫は、西武しんきんキャピタル(西武信用金庫100%出資)による20年以上にわたる直接的な支援や、スタートアップ向け投資ファンドへのLP出資を通じた支援など、スタートアップに対する積極的な取り組みを推進しています。
サッポロ不動産開発は、恵比寿エリアにおいて、Sreedシリーズ※をはじめとする複数の自社保有物件においてセットアップオフィスを施工しており、セットアップオフィスに関するノウハウを蓄積してきました。このノウハウを活かすことで、西武信用金庫にとっては、スタートアップへの新たな取組事例となり、サッポロ不動産開発としても自社保有物件以外のセットアップオフィスの施工事例として、ノンアセット事業の新しい展開となりました。
また、本件は、サッポロ不動産開発が西武信用金庫から賃借した6階フロアをセットアップオフィス化した後、テナントの入退去及び管理業務を行います。これにより、西武信用金庫は、リーシングや管理業務の負担を軽減しつつ、賃貸借期間中の安定した賃料収入と保有物件の価値向上を実現できます。
サッポロ不動産開発は、1994年の恵比寿ガーデンプレイス開業以来、約30年にわたり恵比寿のまちづくりに取り組んできました。一方、西武信用金庫は、1951年に恵比寿支店を開設しており、同庫と深い関係を持つエリアで高いプレゼンスを誇っています。今後も両者は、恵比寿におけるまちづくりのパートナーとして、連携した取り組みを進めます。
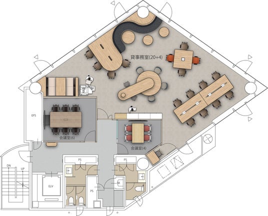
<物件概要>
[表: https://prtimes.jp/data/corp/16744/table/146_1_d5bf0d7355f6514a4e0476050d4d5f9d.jpg ]
<セットアップオフィスの概要>
セットアップオフィスは、入居時にかかる工事期間の短縮とテナントの造作工事費用負担を削減し、退去時の原状回復工事による廃棄物を削減することができる新しいオフィスの貸し方です。



階 層:6階
面 積:51.48坪(170.18平方メートル )
空 調:個別
床仕様:OAフロア
トイレ:男女トイレ別
会議室:2室
WEBブース:1室
※Sreedシリーズ
Sreed series | サッポロ不動産開発株式会社