当社は、人々の豊かな暮らしを支える「サステナブルインフラ企業」です。
いちごでは、オフィスビルの資産価値を高める取り組みの一つとして、貸室にあらかじめ一定の内装や設備を揃えて貸し出す「セットアップオフィス」を展開しています。
「セットアップオフィス」は、入居時の内装設計期間・工事期間の短縮とテナント様の造作工事費用負担を削減し、退去時の原状回復工事による廃棄物を削減することができる、サステナブルで新しいオフィスの形であり、当社では、テナント様のニーズを細かく分析し、デザイン性に留まらず、将来を見据えた実用性に配慮した最適なレイアウトプランを実現することで、高い入居率を達成しています。
このたび、いちごグループが運用する、J-REIT「いちごオフィスリート投資法人(8975)」の運用物件である「いちご渋谷道玄坂ビル」4階において、セットアップオフィスを導入いたしました。

■ セットアップオフィスの概要
いちご渋谷道玄坂ビルは、各線渋谷駅から徒歩9分に位置する地下2階、地上9階建てのオフィスビルです。前テナント様が退去されたことにより2025年10月よりセットアップオフィスの内装工事を進め、12月に完成しました。2026年1月に開催した内覧会では、110名以上の方にご来場いただき、すでに多くの反響をいただいております。
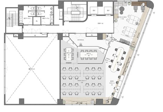
本物件は、約62坪の広さがあり、会議室を2室、オンラインミーティング等に利用できる個室を2室、ソファやカフェテーブル、カウンター席など、気軽に集まりやすいスペースを複数配置しました。気軽な相談やアイデア交換が自然に生まれるよう設計されており、コミュニケーションの質を高める働き方を後押しします。
従業員用の執務デスクはあえて用意せず、ご入居者様にご用意いただくようにすることで、従業員の増加などに柔軟にご対応いただけるハーフセットアップオフィスです。

会議室(8名用)
広々とした執務スペースは自由なレイアウトが可能

ワークデスク(8名用)
リフレッシュスペース
■ フロアレイアウトイメージ

360度VR内覧
セットアップオフィスの空間をVRでご覧いただけます。
https://vvtr.jp/ichigo-shibuyadogenzaka

■ エリアについて
いちご渋谷道玄坂ビルは、渋谷駅から徒歩圏内という高い利便性に加え、再開発が進む渋谷エリアの成長力を取り込みやすい立地のオフィスビルです。渋谷という街が育んできた多様なカルチャーやアートの要素を取り入れることで、発想が自然に広がり、柔軟なアイデアが生まれやすい環境を実現したセットアップオフィスです。
■ 物件概要
物件名:いちご渋谷道玄坂ビル
所在地:東京都渋谷区円山町28-3
交通:京王井の頭線神泉駅 徒歩3分、各線渋谷駅 徒歩9分
延床面積:4,474.67平方メートル
用途:オフィス、店舗
構造・階層:SRC 地下2階/地上9階
竣工:1994年9月
www.ichigo-office.co.jp/portfolio/O-60.html


本物件は、100%再生可能エネルギーを使用しています。
※ 本リリースに関するお問合せ先 いちご広報担当 03-4485-5515