(準)防火地域など、今まで設置が難しかった場所でもサウナを楽しめるようになります。けん引も可能なので、車両として活用することもできます。

建築基準法に適合した可動式サウナ「PIONEERI(ピオネーリ)」
株式会社ロイヤルコーポレーション(本社:埼玉県さいたま市、代表:田島 永一)は、自社が運営するアウトドアサウナブランド「SAUNEA(サウネア)」(マネージャー:田島 裕二)が、日本初※となる"建築基準法に適合し、けん引も可能"なアウトドアサウナキャビン(小屋)【PIONEERI(ピオネーリ)】を2024年11月11日(月)の「ととのいの日」に発売開始することをお知らせします。
※日本国内における建築基準法に適合し、けん引も可能なアウトドアサウナキャビンとして(2024年10月時点 当社調べ)
これにより、アウトドアサウナを活用した地方創生やプライベートサウナの設置を検討しつつも、建築基準法の制限を理由に諦めていた場所にも設置できるようになりました。

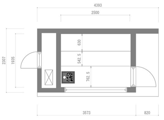
レイアウトの一例。ご要望に合わせてカスタマイズ可能。
フルカスタマイズ可能本製品はすべて受注生産で、お客様のご要望に合わせてサイズや内装などをカスタマイズできます。また、スノーリゾートのグリーンシーズンのみ利用できるようなレンタルプランも検討中です。

「SAUNEA浦和」のパブリックデーで体験可能
12月には体験会も実施12月11日(水)にはSAUNEA浦和にてメディア公開日を設けており、その後に開催される「SAUNEA浦和パブリックデー」では一般の方にもサウナを体験していただけます。
【開発背景】
一般的なアウトドアサウナキャビン(バレルサウナなど)は構造上、建築基準法上の「建築物」として扱われないため、建築確認申請が不要となる環境やサイズでしか設置できませんでした。特に、住宅密集地など火災の延焼を防ぐ性能が必要となる「防火地域」や「準防火地域」、「法22条/23条地域」では設置そのものが困難でした。
SAUNEAマネージャーの田島は、これらの規制の為にアウトドアサウナの設置を断念していた方にもサウナを楽しんでもらいたいと思い、日本全国どこでも対応できるサウナを目指しました。今回発表された「PIONEERI(ピオネーリ)」は、有名サウナ施設のプロデュースで培ってきた品質を保ちつつ、けん引用シャーシに載せたまま「車両」としてサウナを楽しめるだけではなく、基礎に緊結することで(準)防火地域への設置にも対応できます。
※PIONEERIはフィンランドで「開拓者=パイオニア」の意味。今までアウトドアサウナが楽しめなかった場所へ「極上のととのい」を届けたいとの想いから名付けられました。
【アウトドアサウナ需要の高まりと課題】

「やまなし自然サウナととのいプロジェクト」を推進する山梨県でSAUNEAが運営する「SAUNEA白州」
アウトドアサウナの需要は、健康志向やアウトドア活動の人気、コロナ禍による屋外アクティビティの需要増加により急速に拡大しています。特に地方では、地域資源を活用した観光促進や経済活性化の手段として注目されています。山梨県での「やまなし自然サウナととのいプロジェクト」や、 大分県豊後大野市の「サウナのまち」宣言などがその例です。
しかし、法令順守の課題に加えて、簡易的な構造のアウトドアサウナキャビンでは断熱性能が不十分でサウナ室内の温度が上がらなかったり、耐久性能が低かったりという課題がありました。「PIONEERI(ピオネーリ)」はこれらの課題を解決し、日本各地の持続可能な観光地経営に貢献します。

サウナ向けペレットストーブ「ALKU(アルク)」
完全オフグリッドサウナも可能電源設備不要のアウトドアサウナ向けペレットストーブ「ALKU(アルク)」と太陽光パネルを組み合わせることで、カーボンニュートラルを達成しながらもオフグリッドの大自然の中で最大115℃の本格アウトドアサウナを楽しむこともできます。
【製品スペック例】
・外寸 (シャーシを除く) (mm): 幅 4,393 x 奥行 2,307 x 高さ(最高部) 2,810
・外寸 (シャーシを含む) (mm): 幅 6,500 x 奥行 2,400 x 高さ(最高部)3,651
・サウナ室内寸 (mm): 幅 2,500 x 奥行 1,935 x 高さ 1,950
・熱源 : 3種類選択可能(ペレット、電気、薪)
【メディア公開日 / パブリックデー日程】

SAUNEA浦和で開催されるパブリックデーの様子
▼メディア公開日 ※内容は変更の可能性もあります
日時:12月11日(水)AM10:00~AM10:50
会場:SAUNEA(サウネア)浦和
住所:埼玉県さいたま市桜区道場3-23-30
内容:シャーシに載せた状態のPIONEERIの内観・外観の撮影(一部制限あり)
SAUNEAマネージャー田島への取材可能
取材申込み先:info@royal-k.com
▼SAUNEAパブリックデー ※内容は変更の可能性もあります
日時:12月11日(水)DAYの部 11:00~16:00 / NIGHTの部 17:00~22:00
会場:SAUNEA(サウネア)浦和
住所:埼玉県さいたま市桜区道場3-23-30
内容:サウナ3種類、大小レンタルタオル、狭山茶ロウリュ付き。
料金:2,200円/人
パブリックデー詳細:https://sauneaurawa1211.peatix.com/
【本件に関するお問い合わせ先】
株式会社ロイヤルコーポレーション 広報
E-mail :info@royal-k.com
【会社概要】
社名 :株式会社ロイヤルコーポレーション
代表 :代表取締役社長 田島 永一
本社所在地 :埼玉県さいたま市浦和区仲町1-5-9 2F
HP :https://royal-corporation.co.jp/
設立 :2000年1月
資本金 :30,000,000円
従業員数 :12人
事業内容 :不動産事業(マンション開発/土地売買/物件賃貸)
ウェルネス事業(サウナ製造・販売・サウナ施設プロデュース/運営)
農業福祉連携事業
自然エネルギー
【SAUNEAについて】

極上のととのい時間をあなたに。2021年、日本で初めて国産木材を使用したキューブ型サウナ「RIISI(リージ)」の製造・販売を開始。全国の高級旅館施設や大型温浴施設に導入される。2022年には埼玉県に1日1組限定のサウナ付きイベントスペース「SAUNEA浦和」を、2024年8月には山梨県にアウトドアサウナ付き貸切専用宿泊施設「SAUNEA白州」をオープンさせた。そして2024年9月には日本初となるアウトドアサウナ向けペレットストーブ「ALKU(アルク)」を開発し、今後も高品質なアウトドアサウナの普及を目指す。