グラフィック社は、書籍『手塚貴晴+手塚由比 建築のすすめ』を、2026年3月に発売いたします。

検討スケッチから詳細図、卒業設計まで。初公開資料を惜しみなく収録。
手塚貴晴と手塚由比が、これから建築を志す若者たちへ向けて綴った渾身の書き下ろし。
設計の技術だけでなく、建築とどう向き合うのか、社会とどう関わるのか──自らの経験を惜しみなく語る“建築のすすめ”です。
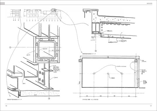
本書にはテキストに加え、卒業設計や旅のスケッチ、手塚貴晴の手描きによる処女作「副島病院」の実施図面を収録。さらに「屋根の家」「風姿」「新島学園短期大学講堂」「希望のまち」などのスケッチや詳細図を大ボリュームで掲載しています。なかでも代表作「ふじようちえん」の検討過程のスケッチは必見。本邦初公開となる貴重資料も多数収録。
建築を学ぶ学生はもちろん、建築好きの方には手元に置き、何度も開きたくなる一冊です。
<本書イメージ>

建築のすすめ 手塚貴晴(鎌倉山の家)

建築家を志したきっかけ 手塚由比

建築を学ぶ若者たちへ 手塚貴晴(新島学園短期大学講堂)

詳細図(副島病院)

詳細図(副島病院)

詳細図(ふじようちえん)

詳細図(風姿)

詳細図(希望のまち)
<目次>
はしがき 僕らは建築家になったかもしれない
建築のすすめ 手塚貴晴
建築家になろう 建築を学ぶ学生たちへ
世界と人間の絆をもう一度
広瀬鎌二 神のような教授1
広瀬鎌二 神のような教授2
学生の設計は嘘
立派な嘘をついてほしい
手塚貴晴の卒業設計
ほどほど 鎌倉山の家
建築家を志したきっかけ 手塚由比
建築家を志したきっかけ
実家のこと
小学生時代
中学~高校時代
大学時代
手塚由比の卒業設計
ロンドンでの生活
「喫茶ロン」のこと
母のこと
建築を学ぶ若者たちへ 手塚貴晴
(構造の覚書)
嫌われ者の構造力学
構造はデザイン
なぜフェイクの構造はいけないのか?
姿と構造
鉄骨
梁のプロポーション
(木造の覚書)
木は命
木造
装飾か構造か
斗供
木と想い出 あさひ幼稚園
扇垂木 光恩寺・とみおかこどもえん
自由にしかし合理的に 箱根彫刻の森 ネットの森
過去と未来 富岡商工会議所会館
やわらかい木造 新島学園短期大学講堂-新島の森
(音響の覚書)
JSバッハ
新島学園短期大学講堂-新島の森
番町教会
THE MOMENT JAZZ CLUB
むく保育園
(環境の覚書)
怪しいサスティナブル建築
風情の環境工学
(都市の覚書)
不便な都市
綺麗な都市と面白い都市 渋谷フクラス
(詳細図の覚書)
神はいまでもディテールに宿っているのか?
(旅の覚書)
名建築はシンプル
旅とスケッチ
詳細図
副島病院
屋根の家
越後松之山「森の学校」キョロロ
ふじようちえん
聖鳩幼稚園/茅ヶ崎シオンキリスト教会
渋谷フクラス
PLAY!
あさひ幼稚園
新島学園短期大学講堂-新島の森
風姿
希望のまち
旅とスケッチ
トルコ/エジプト/イタリア/フランス/イギリス/スイス/スペイン/インド/アメリカ
あとがきの代えて1. アトリエのすすめ
あとがきの代えて2. Princeton
<著者プロフィール>
手塚貴晴+手塚由比
手塚貴晴(てづか・たかはる)
1964年東京都生まれ。建築家。手塚建築研究所代表。東京都市大学教授。1987年武蔵工業大学(現東京都市大学)卒業。1990年ペンシルべニア大学大学院修了後、リチャード・ロジャース・パートナーシップ・ロンドン勤務。1994年手塚由比と手塚建築研究所を共同設立。OECD(経済開発協力機構)とUNESCOにより世界でもっとも優れた学校に選ばれた「ふじようちえん」に加え、「渋谷フクラス」などの大型建築物、「新島学園短期大学講堂 −新島の森」や「THE MOMENT JAZZ CLUB」などの特殊音響、小児がんセンター「チャイルド・ケモ・ハウス」などの病院建築も手がける。その他の代表作に「屋根の家」「あさひ幼稚園」「空の森クリニック」「むく保育園」など。世界環境建築賞Global Award for Sustainable Architecture、World Architecture Festival受賞。国内では日本建築学会賞、日本建築家協会賞、グッドデザイン金賞、こども環境学会賞など受賞。TEDトークの再生回数は2015年の世界7位を記録。
手塚由比(てづか・ゆい)
1969年神奈川生まれ。建築家。1992年武蔵工業大学卒業。1992-1993年ロンドン大学バートレット校(ロン・ヘロンに師事)。1994年手塚貴晴と手塚建築研究所を共同設立。
1999年より東洋大学非常勤講師、2001年より東海大学非常勤講師、2006年ザルツブルグ・サマーアカデミー教授、2006年UCバークレー客員教授。
<書籍情報>

『手塚貴晴+手塚由比 建築のすすめ』書影
書名:手塚貴晴+手塚由比 建築のすすめ
著者:手塚貴晴+手塚由比
発売日:2026年3月
仕様:A5判 糸かがり並製 両観音1セット 総256頁
定価:1,870円(10%税込)
ISBN:978-4-7661-4071-2
Amazon https://www.amazon.co.jp/dp/4766140710/
楽天ブックス https://books.rakuten.co.jp/rb/18543281/
<好評関連書籍>

書名:建築断面 矩計図集
著者:内藤 廣、アトリエ・ワン(塚本由晴+貝島桃代+玉井洋一)、新居千秋、古谷誠章、手塚貴晴+手塚由比+矢部啓嗣、中村拓志、小堀哲夫、乾久美子、藤原徹平、前田圭介、武田清明、伊藤博之、川口通正、八島正年+八島夕子、森清敏+川村奈津子、五十嵐敏恭
発売日:2025年2月
仕様:A4 オープンバック製 総160頁
定価:3,850円(10%税込)
ISBN:978-4-7661-3970-9
Amazon https://www.amazon.co.jp/dp/4766139704/
楽天ブックス https://books.rakuten.co.jp/rb/18127108/
プレスリリース https://prtimes.jp/main/html/rd/p/000000505.000084584.html
【書籍に関するお問い合わせ
株式会社グラフィック社
〒102-0073 東京都千代田区九段北1-14-17
ホームページ:https://www.graphicsha.co.jp/
X:https://x.com/Gsha_design/
Instagram:https://www.instagram.com/graphic_sha/
Facebook:https://www.facebook.com/graphicsha/