~宮崎市制100周年イベントと同日に先行開業式典・開業イベントを実施~
NTT都市開発株式会社
NTT都市開発株式会社(本社︓東京都千代田区、代表取締役社長 池田 康)は、2022年12月23日に宮崎市、NTTアーバンソリューションズ株式会社および西日本電信電話株式会社(以下「NTT西日本」)宮崎支店と締結した「次世代型まちづくりの推進に関する連携協定」に基づき、NTT西日本宮崎支店敷地(宮崎市広島1丁目12-1)にて進めております宮崎市広島一丁目プロジェクトにおいて、南棟商業施設「HAROW広島通」がこのたび竣工し、8店舗が先行開業したことをお知らせします。
11月23日には先行開業式典のほか、23日・24日の2日にわたり開業イベントを実施しました。同日は宮崎市制100周年を記念するイベント( 「SMILE MIYAZAKI 100周年祭」)も開催され、多くの市民や来街者が行き交うなど、HAROW広島通は賑わいあふれるスタートとなりました。
なお、HAROW高千穂通とHAROW広島通の全体開業は2025年春を予定しております。当社は、引き続き宮崎市中心市街地における回遊性向上や更なる賑わいの創出に貢献してまいります。
*NTT 都市開発株式会社は、NTT グループの街づくり事業会社である NTT アーバンソリューションズ株式会社の子会社です

先行開業式典の様子
1. 先行開業式典を実施
HAROW広島通の式典では、宮崎市の清山市長をはじめご来賓の方々などによるテープカットが
執り行われ、華やかに開業を迎えました。
また、グリーンスローモビリティ“ぐるっぴー”の新停留所「HAROW広島通」の開設を祝し、記念オブジェを設置しました。新停留所は11月24日より運用を開始しております。

ぐるっぴー新停留所「HAROW広島通」

ぐるっぴー新停留所開設記念オブジェの設置

ぐるっぴー運行ルート
2. HAROW広島通の8店舗が先行開業
HAROW広島通では「個性あふれるローカルマーケット」というコンセプトのもと、地域の素材を活かした飲食店、こだわりの品が揃う物販店など8店舗が先行開業し、各店舗やテラスは食事や買い物を楽しむ多くの方々で賑わいました。

HAROW広島通 賑わいの様子
3. 先行開業イベントを実施
式典に引き続き開催されたイベントでは、シルクスクリーン体験、缶バッチ製作、アイシングクッキー作りなど、「来場者のみなさまとつくり、楽しむ」をコンセプトとしたワークショップを開催しました。地元の個性豊かな焼き菓子店によるマルシェや参加型ラジオ、DJの音楽とともにクラフトビールを味わうナイトイベントなど、こどもから大人まで多くの方にご参加頂きました。また、広島通りでは宮崎市とNTTアーバンソリューションズが連携し、道路占有を行ってのイベント「街中ピクニート」や滞留空間を創出し、通り一体に賑わいが広がりました。
HAROW広島通には、本イベントを実施した広場「PARK」(屋外)のほか、キッチンを完備した「POPUP区画」(屋内)のイベントスペースを設けており、一般の方にも活用いただけます。

シルクスクリーン体験

缶バッジ製作

アイシングクッキー作り

ナイトイベント
公園ラジオ

HAROW広島通 外観

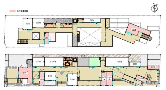
HAROW広島通 施設マップ(上段:2階、下段:1階)
■先行開業テナント一覧 (【区画番号】店舗名 1.業態 2.営業時間 ※定休日)

■事業概要
[表: https://prtimes.jp/data/corp/134094/table/57_1_46b3d252a44756473f504c03dc0d0e3a.jpg ]
【関連リリース】
・宮崎市とNTTグループによる「次世代型まちづくりの推進」に関する連携協定の締結について
(2022年12月23日)
https://www.ntt-us.com/news/2022/12/news-221223-02.html
・宮崎市広島一丁目プロジェクト(NTT西日本宮崎支店敷地)第1弾 NTT広島ビル北棟リノベーション工事の着工について
(2024年2月6日)
https://www.nttud.co.jp/news/detail/id/n26683.html
・宮崎市広島一丁目プロジェクト(NTT西日本宮崎支店敷地) NTT広島ビル南棟新築工事の着工について
(2024年4月3日)
https://www.nttud.co.jp/news/detail/id/n26721.html
・宮崎市広島一丁目プロジェクト(NTT西日本宮崎支店敷地) 施設名称を「HAROW(ハロウ)」に決定 11月23日(土・祝
日)に南棟商業施設8店舗が先行開業(2024年11月6日)
https://www.nttud.co.jp/news/detail/id/n26817.html
※掲載している情報は現段階のもので、今後変更となる可能性があります。
【HAROW広島通公式SNS】
Instagram https://instagram.com/harow_official/
【お問い合わせ先】
NTT都市開発株式会社 広報室 入戸野・若松 nttud-pr@ntt-us.com