アイフルホームカンパニー
株式会社LIXIL住宅研究所アイフルホームカンパニーのFC加盟店であるアイフルホーム大阪大東店を運営する株式会社日の出組は、大阪府大東市にFAVOの新モデルハウスを建築し、2023年10月21日(土)からグランドオープンします。
アイフルホーム大阪大東店の新モデルハウスは、アイフルホームが得意とする子育てしやすい提案をベースに、“ちょうどええやん”がきっとみつかる、楽しく子育てするのに「欲しい」がつまったモデルハウスになっています。

新モデルハウスの間取りの特長は、
・ベビーカーやスーツケース、趣味の道具がしまえる土間収納で、泥だらけの部活道具も部屋に持ち込みません。
・料理をするときも、家族とコミュニケーションがとりやすい家族を見守れる間取りのキッチン。小さなお子様がいても安心です。
・リビングと続く和室を設置。子どもの昼寝や家族のくつろぎに最適です。またフローリングと比べて畳は柔らかいため子どもが転んでもケガをしにくくなります。
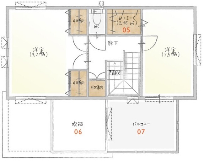
・室内干しもできるユーティリティルームを設置。夫婦共働 きでも急な雨や花粉などを気にせず安心して洗濯物が干せます。また、洗面所と脱衣所が別なので、来客時も生活感を見せません。
・LDKには開放感溢れる吹き抜けを設置。明るく風通しよい間取りとなっています。
・様々な用途で活躍するバルコニーは、壁に高さを設けることで、洗濯物や洗濯を干している姿も外から見えにくくなります。人目を気にしなくていいので、優雅にカフェタイムや読書など、おうち時間に使うこともできます。
安全・快適性能として、耐震等級3相当の躯体に制震システムを搭載した地震に強い構造、火災に強い省令準耐火構造であり、また、高い断熱性能と優れた気密性能で実現するZEH基準をクリアした断熱性能、声やスマートフォンなどで操作のできる最新のIoT住宅となっています。
アイフルホーム大阪大東店は、家づくりを通して、お施主様を「幸せにする会社」でありたいとの考えのもと、シンプルに「いい家をつくりたい」「お施主様に喜んでもらいたい」との思い、お客様の家づくりのお手伝いをしています。今回の新モデルハウスOPENを契機に、より一層お客様の幸せなマイホームの実現に努めていきます。
◆アイフルホーム大阪大東店新モデルハウス概要
【オープン日】 2023年10月21日(土)
【所在地】 住所 〒574-0042 大阪府大東市大野1丁目13番18号
電話番号 072-873-8888
【営業時間】 9:00~18:00 水曜日定休日
【延床面積】 102.28平方メートル (30.93坪)
【URL】
アイフルホーム大阪大東店 ホームページ : https://www.eyefulhome-osakadaito.jp/
見学のご予約はこちらから : https://www.ie-miru.jp/cms/yoyaku/ehosakadaito/events/40448
【特長】
■楽しく子育てができる「欲しい」が詰まった間取り提案
・ベビーカーやスーツケース、趣味の道具がしまえる「土間収納」で、泥だらけの部活道具も部屋に持ち込み
ません。
・料理をするときも、家族とコミュニケーションがとりやすい「家族を見守れる間取りのキッチン」。小さなお子
様がいても安心です。
・リビングと続く「和室」を設置。子どもの昼寝や家族のくつろぎに最適です。またフローリングと比べて畳は
柔らかいため子どもが転んでもケガをしにくくなります。
・「室内干しもできるユーティリティルーム」を設置。夫婦共働きでも急な雨や花粉などを気にせず安心して
洗濯物が干せます。また、洗面所と脱衣所が別なので、来客時も生活感を見せません。
・LDKには「開放感溢れる吹き抜け」を設置。明るく風通しよい間取りとなっています。
・様々な用途で活躍する「バルコニー」は、壁に高さを設けることで、洗濯物や洗濯を干している姿も外から
見えにくくなります。人目を気にしなくていいので、優雅にカフェタイムや読書など、おうち時間に使うことも
できます。
■安心・安全、快適性能
・「耐震等級3相当」の躯体に「制震システム」を搭載した地震に強い構造
・火災に強い「省令準耐火構造」
・高い断熱性能と優れた気密性能で実現する「ZEH基準」をクリアした断熱性能
・声やスマートフォンなどで操作のできる最新の「IoT住宅」


◆当社概要
・会社名 株式会社LIXIL住宅研究所 アイフルホームカンパニー
・代表者 代表取締役社長 加嶋 伸彦
・本社所在地 〒141-0033 東京都品川区西品川1-1-1
・URL 【株式会社LIXIL住宅研究所】 https://www.lixil-jk.co.jp/
【アイフルホーム】 https://www.eyefulhome.jp/
◆LIXIL住宅研究所 概要
住宅及びビル建材・設備機器の製造販売・住宅フランチャイズチェーンの運営など、総合的な住生活関連事業を展開するLIXILの一員です。住宅フランチャイズチェーン事業の運営を担う企業として、アイフルホーム、フィアスホーム、GLホームの3ブランドを展開し、国内最大級の住宅フランチャイズチェーン事業を展開しています
◆アイフルホーム 概要
1984年の創業以来、「より良い家を、より多くの人に、より合理的に提供する」との使命を掲げ、お客様の「良いに家に住みたい」というご要望にお応えするため、だれもが安心して家を手に入れられる住宅のフランチャイズチェーンシステムを開発・導入したパイオニアです。高いコストパフォーマンスと統一品質の実現により、適正価格で高品質な住まいを提供し続け、これまでに17万棟を超える住まいを提供してきました。