奈良市役所南側広場の整備が完了し、6月1日(土)より芝生広場の供用を開始します。
デジタル社会の推進により、これからは市役所に行かなくても、さまざまな手続きや相談等ができる時代になっていくことを見据え、用事の有無に関わらず、誰もが気軽に立ち寄り、集い、交流できる新しい市役所像を築きたいと考えています。
6月1日のオープニングイベントでは、フードマーケットや移動図書館、音楽団体の生演奏やキッズダンス、ゲームもお楽しみいただけます。ぜひお気軽にご来場ください。

TOPICS!
◆昭和52年(1977年)に市役所が現在の位置に移転して以来、初めての大型リニューアル。
◆芝生広場の広さは1,700平方メートル 。フラットで開放的な空間にすることで、用事が無くても気軽に立ち寄れる公園のような雰囲気に。
◆6月1日(土)にオープニングイベントを開催
開催日時:2024年6月1日(土)10:00~14:00(入場無料・申込不要・雨天時は翌日に延期)
内容:ミニコンサート・移動図書館・フードマーケット・ゲーム(モルックなど)
「日常に公園のある暮らし」これまでの取り組み

「奈良市子ども会議」を設置。
子どもの遊び場について議論し意見表明。

「まちの食卓」を開催。公園に「食卓」を設置し、
これからの公園での過ごし方を検討。

三条通で「春日表参道 SUN DAYS PARK」を開催。コロナ禍に商店街の歩道空間を生かし、芝生ゾーンやテーブル、ソファ、ハンモック等を設置し、オープンテラスを実施。

「PARK LIFE MEETING」を開催。
「これからの公園」をテーマに講演会とワークショップを実施。考えたアイデアをチームで実践し、フィードバックを共有。

奈良市公園マネジメント基本計画を策定。
「トライアル・サウンディング」を実施し、地域のニーズに沿った公園の利活用につなげる。
奈良市庁舎東棟屋上に「屋上こども広場」を開放。
柏木公園にキッズパーク、鴻ノ池には「ロートスケートボードパーク奈良」、そして、西大寺一条線の芝生空間を整備。
そして2024年、奈良市役所南側に芝生広場が完成!
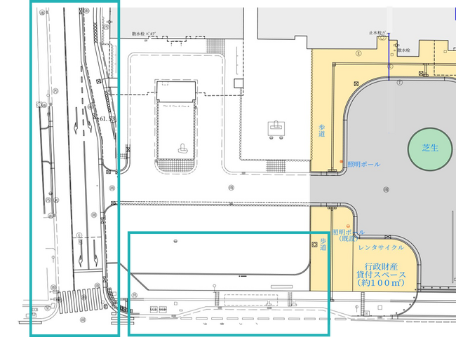
芝生広場について
■整備期間
令和5年9月27日~令和6年4月26日 ※芝生広場は5月31日(金)まで養生
■活用イメージ
まちやひとにオープンで上質な空間を提供 公園のような庁舎前広場
1.普段は、市民が自由に集えるオープンスペース※
市民の憩いの場・子どもの遊び場・バスの待ち時間の休憩・移動図書館 など
2.非常時は、市民の安全を守る災害拠点として利用
災害時は緊急車両等の駐停車・活動拠点として活用
※今後のイベント開催など広場利用については、当面の間、トライアルサウンディングを実施し、芝生の状況や市民ニーズを確認しながら、方針を検討
【整備前】

【整備後】

■寄附・寄贈
・南都銀行様より、寄附をいただきます。芝生広場内の設備に活用させていただきます。
・奈良西ライオンズクラブ様より、サークルベンチを寄贈いただきます。

6月1日(土) オープニングイベント
■開催日時
2024年6月1日(土)10:00~14:00(入場無料・申込不要)
※雨天時は翌日に延期(前日に奈良市ホームページ・SNSで広報)
■内容
・ミニコンサート
・移動図書館
・フードマーケット
・ゲーム(モルック) など
■タイムテーブル
10:00 開始 あいさつ
10:10 テープカット 奈良市子ども会議メンバーほか
10:15 演奏 奈良市内で活動する音楽団体
10:30 イベント開始 ミニコンサート・移動図書館・フードマーケット・ゲームなど
14:00 終了

(参考)その他の整備の状況
■市庁舎西側道路を3車線に(9月供用開始予定)
南向きの進行が1レーンであった西側道路を、右折・左折の2レーンを整備することで、スムーズに通行できるようにします。歩道空間も確保します。

▲写真は令和6年1月時点


■バス停「奈良市庁前」待合スペースの確保(9月供用開始予定)
自転車やベビーカーもスムーズに通行できるように、十分なスペースを確保します。


▲写真は令和6年5月時点の様子
関連リンク
▼奈良市役所南側芝生広場の供用を開始!6月1日(土)にオープニングイベントを開催!(令和6年5月14日発表)
https://www.city.nara.lg.jp/site/press-release/206239.html
本件に関するお問い合わせ先
奈良市 総務部 資産管理課
TEL:0742-34-4724